Apartamento T1 novo, Povljana

€ 175.000
1
50 m²
1
Não
Varanda

Nota

Anúncio atualizado em 12/03/2026
Descrição

This description has been translated automatically and may not be accurate

referência: S4

On the island of Pag, in the peaceful and charming town of Povljana, there is a modern residential apartment building with a total of 15 apartments. The location is ideal for enjoying the Mediterranean lifestyle. The building is situated in an excellent location, only 300 meters from the sea and 500 meters from a maintained beach, providing a perfect balance between comfort, elegance, and natural beauty.



Quality construction and materials

The property is built with an emphasis on quality, durability, and living comfort. The structure is reinforced concrete, with exceptional static stability, while the interior partition walls are made of block brick. The facade is thermally and waterproof insulated with 10 cm of styrofoam, ensuring high energy efficiency.

Heating and cooling are provided by Bosch brand air conditioning units in every room. The apartments are equipped with burglar-proof and fire-resistant entrance doors, double-glazed PVC window frames, and ceramic floors. The expected energy class is A.



Attractive location

The apartment is located in an extremely favorable and quiet location, just a few minutes’ walk from the sea and the center of Povljana. The apartment offers views of the sea, the island of Vir, and a wider part of the town. Povljana is a pleasant, family-oriented town that offers everything needed for a quality stay and everyday life, including a post office, clinic, school, shops, bakeries, confectioneries, and a marina for small vessels.

Povljana as a blend of Mediterranean charm and modern comfort

Povljana is a picturesque coastal town on the island of Pag, known for its crystal-clear sea and beautiful pebble and sandy beaches. The town enchants with a combination of traditional Dalmatian architecture and a contemporary lifestyle.

Along with a rich gastronomic offer, highlighted by Pag cheese and premium lamb, Povljana offers numerous facilities for relaxation and recreation. Nature lovers can explore hidden coves and untouched beaches, ideal for escaping crowds and enjoying complete tranquility.

The island of Pag is excellently connected to the mainland. Ferry lines operate throughout the day, while the Pag Bridge allows car access without a ferry. Zemunik Airport in Zadar is approximately a 1-hour drive away, and fast boat lines connect Novalja with Rijeka, Rab, and Lošinj.

Ownership is clear and without encumbrances. This property represents an excellent opportunity for comfortable living, vacation, or long-term investment, thanks to quality construction, an attractive location, and proximity to the sea.



APARTMENT DESCRIPTION:

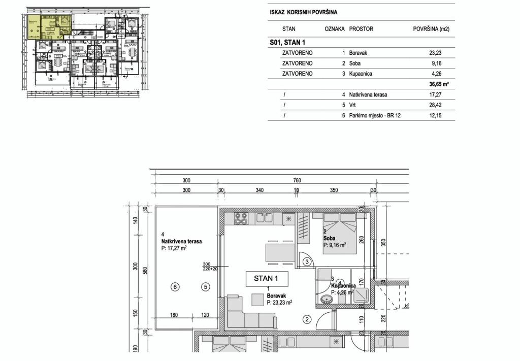
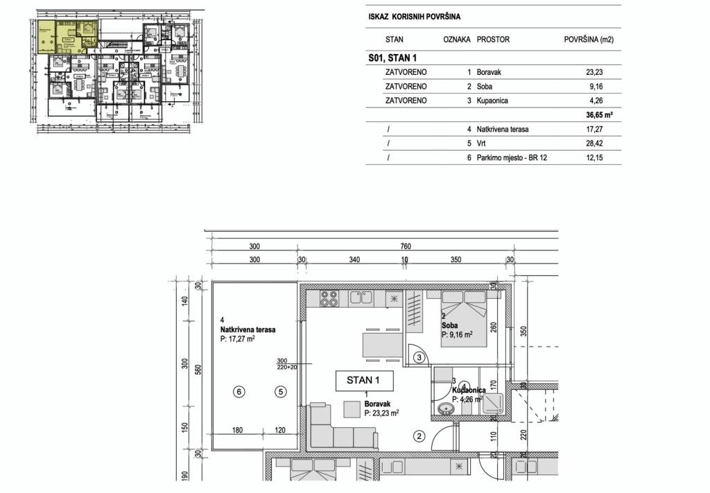
Apartment S1 - ground floor - living area 36.65 m2 (1 bedroom + bathroom) + covered terrace (17.27 m2 - W) + garden (28.42 m2) + outdoor parking space PM13, total net area 50.55 m2 = 175,000 EUR



Move-in date: 06/2026
Buyer DOES NOT pay agency fee

For additional information and to arrange a viewing, feel free to contact us.



SAN PATRIK PREMIUM STANDARD
The property is represented by the boutique agency San Patrik, which provides expert consulting and an individual approach to each buyer. Our role is to ensure verified documentation, complete legal security, and a transparent sales process with access to all key information before making a purchase decision.
Se quiser saber mais, pode falar com Ivan Varat.
Características
Tipologia
Apartamento | Classe propriedade média
Contrato
Venda
Andares do Edifício
2
Elevador
Não
Superfície
50 m²
Quartos
1
Quartos
1
Casas de banho
1
Varanda
Sim
Terraço
Não
Aquecimento
Individualizado, de ar
Ar condicionado
Ar condicionado
Informações de preço
Preço
€ 175.000
Preço por m²
3.500 €/m²
Eficiência energética

Consumo de energia

A

Planta
Descubra cada canto da propriedade
+4
Opções adicionais

Contactar o anunciante

Ou