Vivenda familiar 254 m², muito bom estado, Korčula

€ 535.000
5+
254 m²
3
Não
Varanda
Terraço
Mobilado

Nota

Anúncio atualizado em 30/03/2026
Descrição

This description has been translated automatically and may not be accurate

referência: EK-2290487

Beautifully restored stone house located in a peaceful Mediterranean village on the island of Korčula – an area known for its rich heritage, excellent gastronomy, and top-quality wines. Ideal for family living, vacations, or rental investment.

Key Information

Location: Quiet village, island of Korčula
Type: Residential house
Area: 254 m² net
Condition: Fully renovated
Parking: 3 private parking spaces
The house offers a functional and spacious layout, ensuring comfort and privacy.

A landscaped stone courtyard welcomes you at the entrance, while multiple terraces provide beautiful views of the surroundings.

On the property, there is also a separate building with a fully equipped summer kitchen, perfect for gatherings and outdoor dining.

The interior exudes Mediterranean warmth, with natural materials and stone elements used throughout. Peaceful surroundings meet convenience, as shops, cafés, restaurants, and beaches are all nearby.

Layout

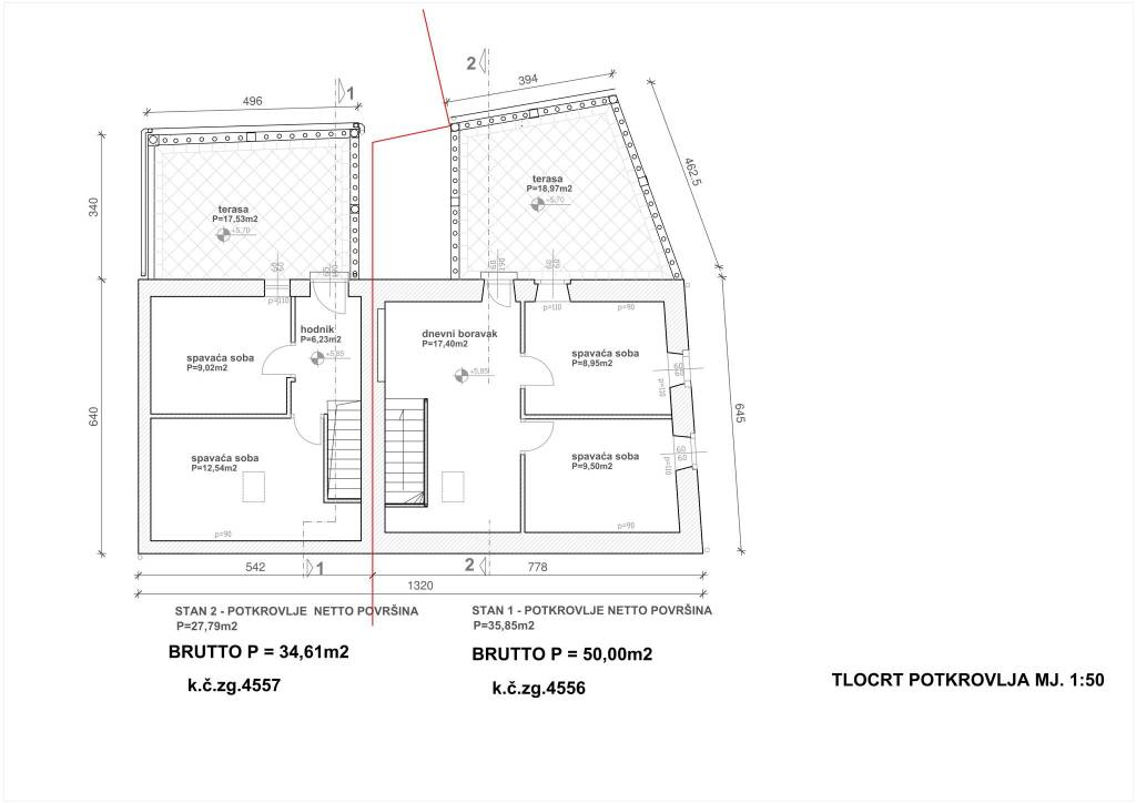
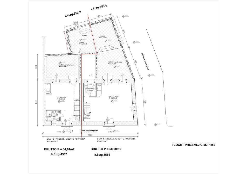
4 bedrooms
4 bathrooms
study
5 terraces
kitchen
living room
summer kitchen
utility room

Highlights

Traditional stone architecture with modern renovation
Spacious terraces with serene views
Peaceful Mediterranean setting
Ideal for living, vacation, or renting

Price: 535.000€

dreams@elise.services

+385991678775
Características
Tipologia
Vivenda familiar | Propriedade plena | Classe propriedade senhoril
Contrato
Venda
Andar
1
Andares do Edifício
3
Elevador
Não
Superfície
254 m²
Quartos
5+
Quartos
4
Cozinha
Cozinha habitável
Casas de banho
3
Mobilado
Sim
Varanda
Sim
Terraço
Sim
Estacionamento, lugares de estacionamento
3 em estacionamento compartilhado
Aquecimento
Individualizado, com radiadores
Ar condicionado
Ar condicionado, frio/quente
Vista
Mar
Outras características
  • Armário
  • Banheiro separado
  • Dupla exposição
  • Equipado para idosos
  • Janelas em vidro / PVC
  • Lareira
  • Sótão
  • Taberna
Detalhe da superfície

Habitação

Andar
1
Superfície
254,0 m²
Coeficiente
100%
Tipo de superfície
Principal
Sup comercial
254,0 m²
Informações de preço
Preço
€ 535.000
Preço por m²
2.106 €/m²
Eficiência energética
  • Estado

    Muito bom / Remodelado
  • Aquecimento

    Individualizado, com radiadores
  • Ar condicionado

    Ar condicionado, frio/quente
  • Certificação energética

    Não classificável
Planta
Presjek objekata_1 1
Tlocrt potkrovlje (1) 1
Tlocrt suteren (1) 1
Presjek objekata 2 1
Tlocrt kat (1) 1
Descubra cada canto da propriedade
+15
Opções adicionais

Contactar o anunciante

Ou