map icon

Apartamento novo, primeiro andar, Luka, Poreč

PorečLuka
€ 480.000
5+
110 m²
3
1

Nota

Anúncio atualizado em 14/03/2026
Descrição

This description has been translated automatically and may not be accurate

referência: 2010-1

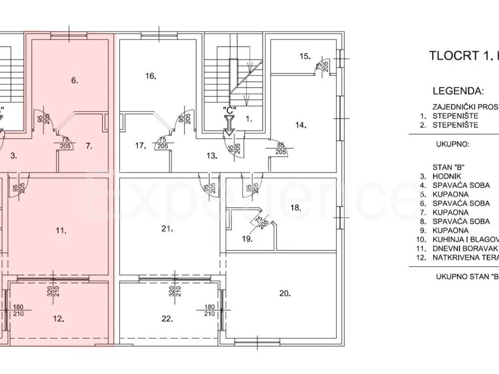
IN AN ATTRACTIVE LOCATION, in Poreč - approx. 600 meters from the beach, there is an apartment for sale, with a total area of 103.29 m. The apartment is located on the first floor of a newly built residential building. The apartment contains: entrance hall, living room, kitchen and dining room with an access to a spacious covered terrace (12.06 m), three bedrooms each with its own bathroom. There is a partial view of the sea from the terrace.

The apartment also has a storage (6.68 m) on the ground floor of the building and 2 parking spaces.

Heating and cooling is regulated with air conditioners and underfloor heating is installed in the living room, kitchen and bathrooms.

With a note, with the purchase of the property, the real estate transfer tax is not paid.
Se quiser saber mais, pode falar com Patricija Simonetti.
Características
Tipologia
Apartamento
Contrato
Venda
Andar
1 andar
Superfície
110 m²
Quartos
5+
Quartos
3
Casas de banho
3
Aquecimento
Central
Informações de preço
Preço
€ 480.000
Preço por m²
4.364 €/m²
Eficiência energética
  • Ano de construção

    2023
  • Estado

    Novo / Em construção
  • Aquecimento

    Central
  • Certificação energética

    Não classificável
Descubra cada canto da propriedade
+17
Opções adicionais

Contactar o anunciante

Ou