Vivenda familiar Labinci, Kaštelir-Labinci, Kaštelir-Labinci

€ 1.550.000
5
383 m²
3+
Não
Terraço

Nota

Anúncio atualizado em 22/01/2026
Descrição

This description has been translated automatically and may not be accurate

referência: 1578

ISTRIA - POREČ - KAŠTELIR - LABINCI

We offer you an idyllic and exclusive settlement under construction in the most beautiful part of the Istrian peninsula, rich in olive groves and vineyards.
The settlement consists of 14 villas facing the sea with breathtaking views - ONLY FOUR VILLAS REMAIN!
Just 7 km away from Poreč and all its amenities!
Settlement appearance: MODERN ISTRIAN STYLE!

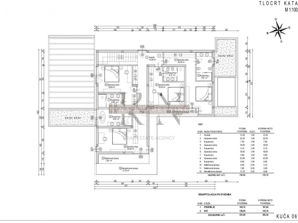
VILLA 6 is situated on a 1323m2 plot. The plot is fenced, landscaped with low grass, equipped with an irrigation system, and adorned with three indigenous olive trees.

It comprises a ground floor and first floor.
GROUND FLOOR: a spacious sunlit living room with a semi-detached dining area and a 76.60 m2 kitchen, providing access to the wine cellar and utility room, leading to a covered terrace with a summer kitchen and space for an ample dining table of 52.3 m2, along with a 5.6 m2 sauna. Also on the same floor are an external storage room and a technical room. A guest toilet is located at the entrance. The living room offers access to a sun deck paved with terrace coverings - high-quality ceramics with an outdoor shower and a 50m2 swimming pool.
FIRST FLOOR: four en-suite bedrooms with individual bathrooms, each bathroom equipped with its own window, and two exits to the terrace.

Villa Equipment:
External ALU carpentry, 10 cm thermal insulation, electric underfloor heating, internal carpentry made of plywood or solid wood, each room equipped with its own air conditioning unit.
Video surveillance covering all sides of the house and an alarm system activated by motion sensors.
Premium Italian tiles in bathrooms sized 60x60, while the rest of the villa is tiled with 60x120 tiles. Features include a Catalano sink, Paffoni faucets, Geberit built-in fittings, and shower glass.

The villas are constructed and ready for occupancy.

PRICE: 1.550.000 euros!

Feel free to contact us!
RINA 099 640 1751,
+385 99 640 1751

ID CODE: 1578

Rina Broqi
Agent
Mob: +385 99 640 1751
Tel: +385 1 638 2643
E-mail: rina@rina-nekretnine.hr
www.rina-nekretnine.hr
Características
Tipologia
Vivenda familiar
Contrato
Venda
Elevador
Não
Superfície
383 m²
Quartos
5
Quartos
4
Casas de banho
3+
Varanda
Não
Terraço
Sim
Estacionamento, lugares de estacionamento
4 em estacionamento compartilhado
Ar condicionado
Ar condicionado, frio/quente
Outras características
  • Porta blindada
  • Sistema de alarme
Informações de preço
Preço
€ 1.550.000
Preço por m²
4.047 €/m²
Eficiência energética

Consumo de energia

A+

Descubra cada canto da propriedade
+15
Opções adicionais

Contactar o anunciante

Ou