map icon

Apartamento T4 Punta Kolova, Opatija, Opatija

OpatijaPunta Kolova, Opatija
€ 2.500.000
4
251 m²
3
r/c
Sim
Terraço

Nota

Anúncio atualizado em 17/04/2026
Descrição

This description has been translated automatically and may not be accurate

referência: 239

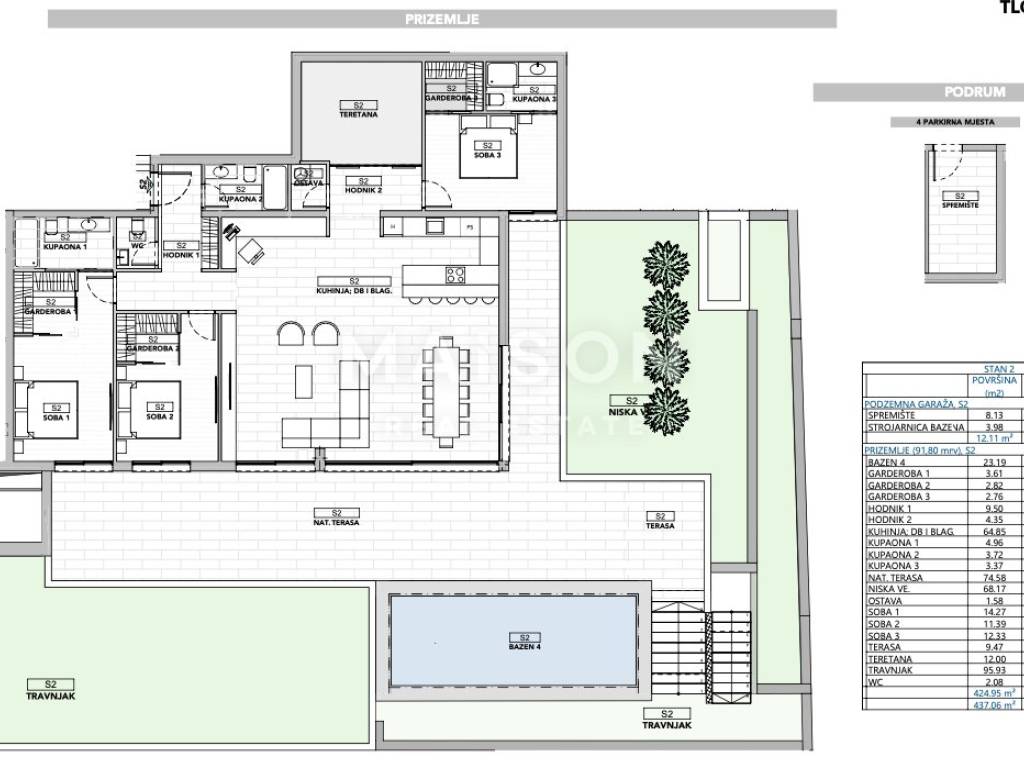
Luxury apartment located near the center of Opatija, offering panoramic sea views and complete privacy, while being in close proximity to all essential amenities. The apartment is situated on the ground floor and spans 425.70 m².

This spacious apartment comprises three elegant bedrooms, three luxurious bathrooms, two hallways, a guest toilet, a storage room, three walk-in closets, a gym, a kitchen, a dining area, and a large living room. The entire living area, dining area, and kitchen are bathed in natural light, thanks to expansive glass surfaces.

For relaxation and enjoyment of the Mediterranean climate, the apartment features a terrace of 84.05 m², which includes a pool with a sunbathing area, offering a spectacular panoramic sea view.

The apartment is equipped with high-quality triple-layer oak parquet flooring, Schuco aluminum joinery with triple-glazed windows, and electric external shutters. Underfloor heating is installed throughout the apartment via a heat pump, and the exterior facade is ventilated, enhancing energy efficiency.

The apartment comes with four parking spaces and a storage unit.

This luxury apartment presents a unique opportunity for comfortable and sophisticated living in the heart of Opatija, featuring top-notch amenities, modern design, and an irresistible sea view.

Maison - because home is not just a place, but a way of life.

ID CODE: 239

Tamara Lay
Agent s licencom
Mob: + 385 99 455 5131
Tel: +385 51 640 777
E-mail: tamara@maison-nekretnine.com
www.maison-nekretnine.com
Características
Tipologia
Apartamento
Contrato
Venda
Andar
Rés-do-chão
Andares do Edifício
2
Elevador
Sim
Superfície
251 m²
Quartos
4
Quartos
3
Casas de banho
3
Varanda
Não
Terraço
Sim
Estacionamento, lugares de estacionamento
1 em garagem, 4 em estacionamento compartilhado
Aquecimento
Individualizado, de ar
Ar condicionado
Ar condicionado, frio/quente
Informações de preço
Preço
€ 2.500.000
Preço por m²
9.960 €/m²
Eficiência energética

Consumo de energia

A+

Descubra cada canto da propriedade
+13
Opções adicionais

Contactar o anunciante

Ou