Terreno para construção para Venda

€ 249.000
898 m²

Nota

Anúncio atualizado em 03/04/2026
Descrição

referência: 1602

Samo u ponudi Mediator Nekretnina pronađite građevinski teren sa starinom i projektom s građevinskom dozvolom za samostojeću troetažnu kuću s bazenom i garažom u starom centru Kostrene.
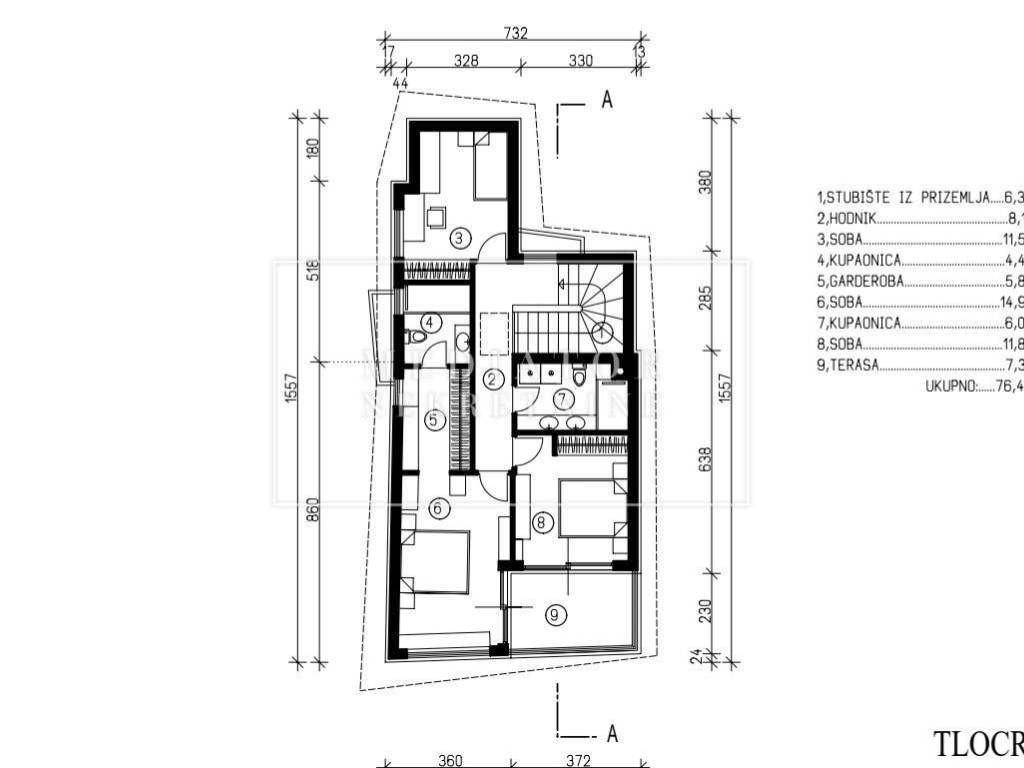
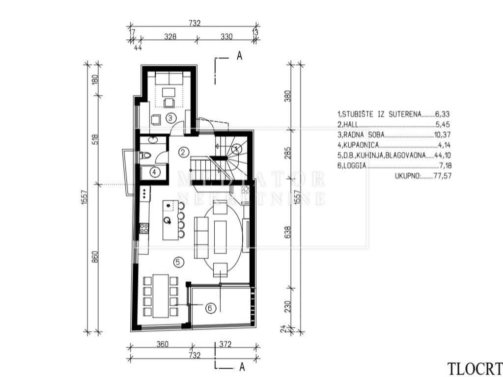
Prema projektu, planirana je izgradnja kuće sa suterenom u kojem bi se nalazila garaža za dva automobila, spremište i dodatna tehnička prostorija. U prizemlju se nalazi prvi kat dvoetažnog stana u kojem je planiran otvoreni prostor dnevnog boravka, kuhinje i blagovaonice, radna soba, kupaonice i loggia. Na katu je planirana master soba s garderobom i kupaonicom, dvije spavaće sobe, kupaonica i terasa.
Na čestici je planirana izgradnja bazena bruto površine 8x4,10 m, neto dubine 1,35 m, uz bazen bi se nalazila i ljetna kuhinja ukupne površine 15,49 m2.
Ukupna površina objekta iznosi 273,49 m2. Površina terena iznosi 898 m2.

Mediator Nekretnine – ključ Vašeg doma!

ID CODE: 1602

Demi Gjukić
Vanjski suradnik i agent
Mob: +385 91 587 6798
Tel: +385 51 582 317
E-mail: demi.janko@mediator-nekretnine.hr
www.mediator-nekretnine.hr
Características
Contrato
Venda
Tipologia
Terreno para construção
Superfície
898 m²
Informações de preço
Preço
€ 249.000
Preço por m²
277 €/m²
Descubra cada canto da propriedade
+10
Opções adicionais

Contactar o anunciante

Ou