Apartamento T3 Njivice, Omišalj, Njivice, Omišalj

€ 645.000
3
73 m²
1
1
Não
Varanda

Nota

Anúncio atualizado em 22/01/2026
Descrição

This description has been translated automatically and may not be accurate

referência: 2690

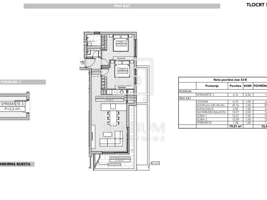
NJIVICE, ISLAND OF KRK, in an exclusive offer is a two-story apartment with a pool in a small new building. The area is 104.45 m2 and it is distributed as follows: kitchen with dining room and living room 38.55 m2, two bedrooms of 11.34 and 11.52 m2, two bathrooms of 5.48 and 4.78 m2, hallway 2.8 m2, storage room 0.84 m2, terrace of 66.10 m2, balcony 5.25 m2 and swimming pool of 11.30 m2. The apartment will be equipped with aluminum carpentry, first-class floor coverings and first-class sanitary facilities. Underfloor heating is installed via a heat pump, and a fan-coil system is used for cooling. Everything will be combined into a smart system, with which this innovative concept will improve the management of all devices and provide better system security and energy efficiency. In a quiet street, surrounded by family houses and luxurious new buildings, next to the green belt, this location offers everything you could wish for on vacation, as well as during a year-round stay. The planned completion of the works is August 2025. Experience a real summer vacation in the charming ambiance of a tourist resort right by the sea! Beautiful beaches, exceptionally blue sea, plenty of shade and a mild climate attract more and more guests to Njivice every year, which today are synonymous with family tourism. Once a small fishing village, Njivice is now a well-known tourist destination, a seaside place with a soul, which guests from European and other countries like to visit. For other information, please contact us with confidence. Azalea Kegalj Licensed agent +385 95 905 5464 azalea@spatium.hr Jana Hodak licensed agent 098/1671-888 jana@spatium.hr Spatium nekretnine +385 51 272 903 info@spatium.hr

ID CODE: 2690

Azalea Kegalj
Agent s licencom
Mob: +385 95 905 5464
Tel: +385 51 272 903
E-mail: azalea@spatium.hr
www.spatium.hr

Jana Hodak
Agent s licencom
Mob: +385 98 167 1888
Tel: +385 51 272 903
E-mail: jana@spatium.hr
www.spatium.hr
Características
Tipologia
Apartamento
Contrato
Venda
Andar
1 andar
Andares do Edifício
2
Elevador
Não
Superfície
73 m²
Quartos
3
Quartos
2
Casas de banho
1
Varanda
Sim
Terraço
Não
Estacionamento, lugares de estacionamento
1 em garagem, 2 em estacionamento compartilhado
Aquecimento
Individualizado, de ar
Informações de preço
Preço
€ 645.000
Preço por m²
8.836 €/m²
Eficiência energética
  • Ano de construção

    2024
  • Aquecimento

    Individualizado, de ar
  • Certificação energética

    Não classificável
Descubra cada canto da propriedade
+3
Opções adicionais

Contactar o anunciante

Ou