Apartamento T3 Poreč, Luka, Poreč

€ 310.822
3
67 m²
1
3
Sim

Nota

Anúncio atualizado em 24/01/2026
Descrição

This description has been translated automatically and may not be accurate

referência: 87381

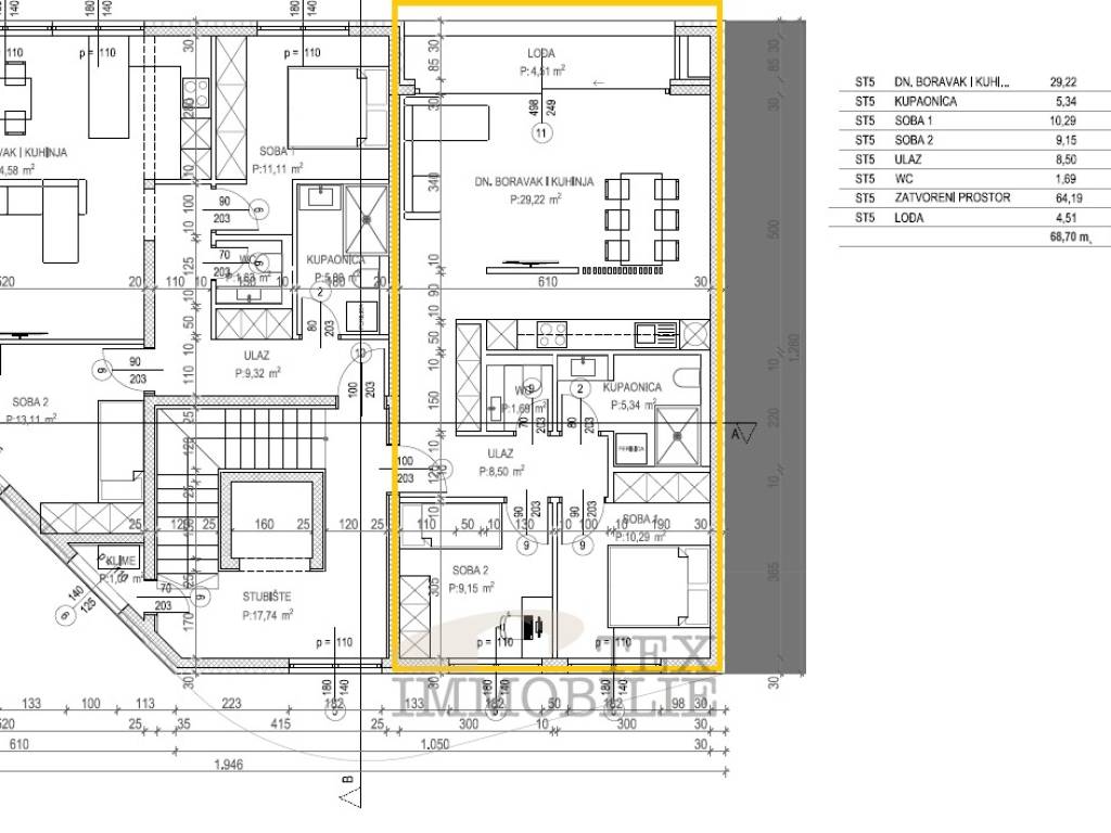
An apartment with a net area of 67.57 m² is for sale, located on the third floor of a new building in a quiet area near Poreč, just a few minutes' drive from the sea and city amenities. The apartment is part of a modern residential-commercial building with twelve residential units and two commercial premises, distributed over the ground floor and three upper floors.

The interior layout includes a bright living room connected to the kitchen and dining area, two bedrooms, a modern bathroom, a WC, and a spacious terrace with a beautiful sea view. The apartment also includes two outdoor parking spaces.

The building will be equipped with an elevator, and the apartments with high-quality PVC joinery with six chambers, triple glazing, mosquito screens, and electric shutters.

The installation of security entrance doors, video intercom, underfloor heating in all rooms via heat pumps, and air conditioning in all rooms is planned.

First-class ceramic tiles can be selected according to the buyer’s preference, allowing for a high degree of personalization.

The planned completion of construction, issuance of the occupancy permit, and registration of condominium units is expected in March 2027.

VAT is included in the price, so the buyer does not pay real estate transfer tax.

In the immediate vicinity, there is a primary school, kindergarten, pharmacy, cafés, restaurants, and shopping centers, making this property an excellent choice for family living, tourist rental, or long-term investment.

ID CODE: 87381

Tex Immobilie
Agent s licencom
Mob: 0989826003
Tel: 0994705455
E-mail: info@tex-immobilie.com
www.tex-immobilie.com
Características
Tipologia
Apartamento
Contrato
Venda
Andar
3 andar
Andares do Edifício
3
Elevador
Sim
Superfície
67 m²
Quartos
3
Quartos
2
Casas de banho
1
Varanda
Não
Terraço
Não
Estacionamento, lugares de estacionamento
2 em estacionamento compartilhado
Aquecimento
Individualizado, de ar
Ar condicionado
Ar condicionado, frio/quente
Informações de preço
Preço
€ 310.822
Preço por m²
4.639 €/m²
Eficiência energética
  • Aquecimento

    Individualizado, de ar
  • Ar condicionado

    Ar condicionado, frio/quente
  • Certificação energética

    Não classificável
Descubra cada canto da propriedade
+9
Opções adicionais

Contactar o anunciante

Ou