Apartamento T4 Srima, Vodice, Vodice

€ 764.829
4
196 m²
2
1
Não
Terraço

Nota

Anúncio atualizado em 22/01/2026
Descrição

This description has been translated automatically and may not be accurate

referência: AS-862

NEW BUILDING !!!
SECOND ROW TO THE BEACH

Duplex luxury apartment for sale, second row to the sea in Srima.

Apartment S8 is located in a residential building with a total of 8 apartments.
The building consists of ground floor, first, second and third floor.

Distance from the center: 600m
The project is planned to be completed by the end of 2023.
The apartments are equipped with quality windows and doors with electric shutters and mosquito nets, burglar and fire entrance doors, electric underfloor heating in the bathrooms. Rooms and living room are equipped with air conditioning and TV connection.
Modern toilets.

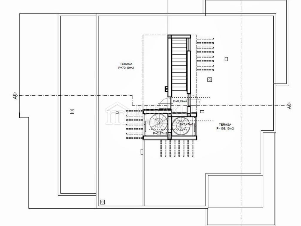
APARTMENT S8 is located on the second floor and consists of three bedrooms, hallway, staircase, toilet, two bathrooms, living room, dining room and kitchen.
On the second floor there is a terrace of 24.46 m2.
On the third floor there is a staircase and a large terrace of 103.10 m2.
It also has one parking space.

ID CODE: AS-862

Mirakul Adria
Mob: +385 91 150 5210 Philipp Drescher (DE, EN, HR)
Tel: +385 22 438 023 (DE, EN, HU, HR)
E-mail: mirakul@mirakul-adria.hr
http://mirakul-adria.hr
Características
Tipologia
Apartamento
Contrato
Venda
Andar
1 andar
Andares do Edifício
2
Elevador
Não
Superfície
196 m²
Quartos
4
Quartos
3
Casas de banho
2
Varanda
Não
Terraço
Sim
Estacionamento, lugares de estacionamento
1 em estacionamento compartilhado
Aquecimento
Individualizado, de ar
Ar condicionado
Ar condicionado, frio/quente
Informações de preço
Preço
€ 764.829
Preço por m²
3.902 €/m²
Eficiência energética
  • Aquecimento

    Individualizado, de ar
  • Ar condicionado

    Ar condicionado, frio/quente
  • Certificação energética

    Não classificável
Descubra cada canto da propriedade
+7
Opções adicionais

Contactar o anunciante

Ou