Apartamento T3 Cres, Cres

€ 386.000
3
92 m²
1
r/c
Não
Terraço

Nota

Anúncio atualizado em 22/01/2026
Descrição

This description has been translated automatically and may not be accurate

referência: 4690

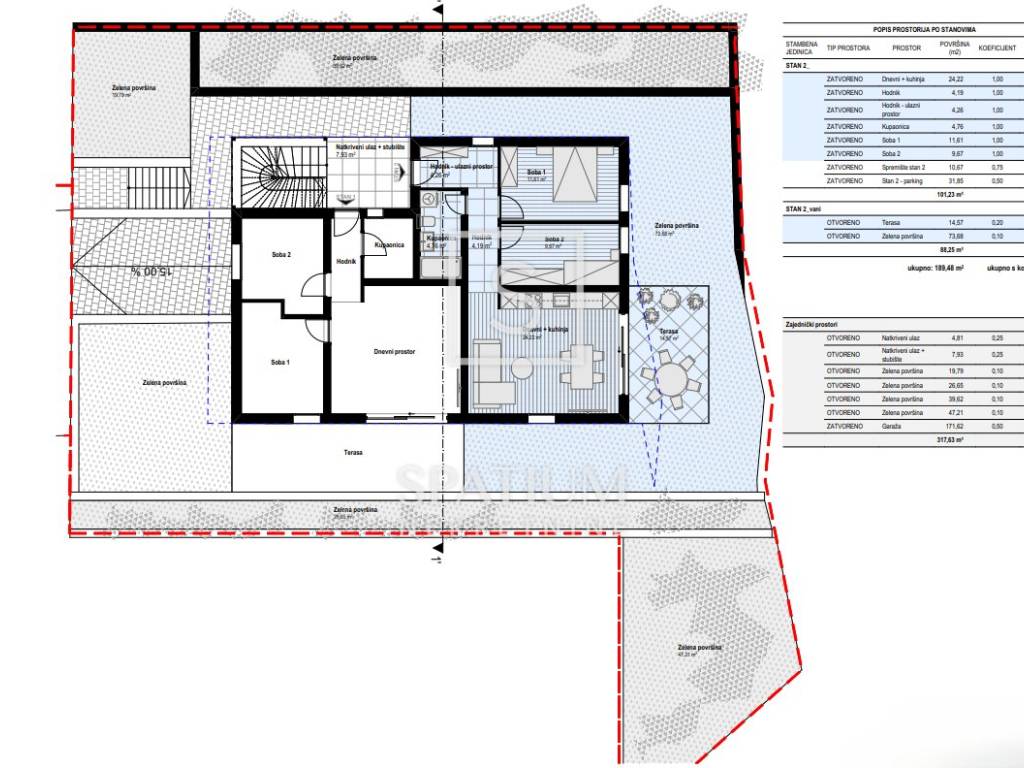
CRES, we have received an apartment of 69.38 m2 in a new building, on the ground floor of a small residential building of modern architecture. It consists of an entrance hall, hallway, living room with kitchen, two bedrooms and a bathroom. The property has an outdoor terrace of 14.57 m2, a storage room of 10.67 m2, and one parking space of 31.85 m2. The property is located in a quiet area overlooking the bay and the old town. Construction will begin in 2025, and is expected to be completed in 4 months of 2026. CRES is the largest town on the island of Cres and has about 2,500 inhabitants. It is located in a bay whose structure provides shelter and therefore in the past it was a suitable port and a place where ships took shelter during bad weather. Such an accommodation enabled the development of fishing, shipping and shipbuilding. The shape of the bay and natural shelter also contributed to the construction of a marina that was built in the southeastern part of the city. There are also numerous olive groves around the town, whose olives produce fruit every year from which the famous Cres olive oil is produced. For further information, please contact us with confidence.

Toni Jelčić
Agent s licencom
+385 91 781 6317
toni@spatium.hr

Spatium nekretnine
+385 51 272 903
info@spatium.hr

ID CODE: 4690

Toni Jelčić
Agent s licencom
Mob: +385 91 781 6317
Tel: +385 51 452 479
E-mail: toni@spatium.hr
www.spatium.hr
Características
Tipologia
Apartamento
Contrato
Venda
Andar
Rés-do-chão
Andares do Edifício
2
Elevador
Não
Superfície
92 m²
Quartos
3
Quartos
2
Casas de banho
1
Varanda
Não
Terraço
Sim
Estacionamento, lugares de estacionamento
2 em estacionamento compartilhado
Aquecimento
Individualizado, de ar
Informações de preço
Preço
€ 386.000
Preço por m²
4.196 €/m²
Eficiência energética
  • Ano de construção

    2025
  • Aquecimento

    Individualizado, de ar
  • Certificação energética

    Não classificável
Descubra cada canto da propriedade
+5
Opções adicionais

Contactar o anunciante

Ou