Terreno para construção para Venda

€ 199.900
460 m²

Nota

Anúncio atualizado em 22/01/2026
Descrição

referência: 2970

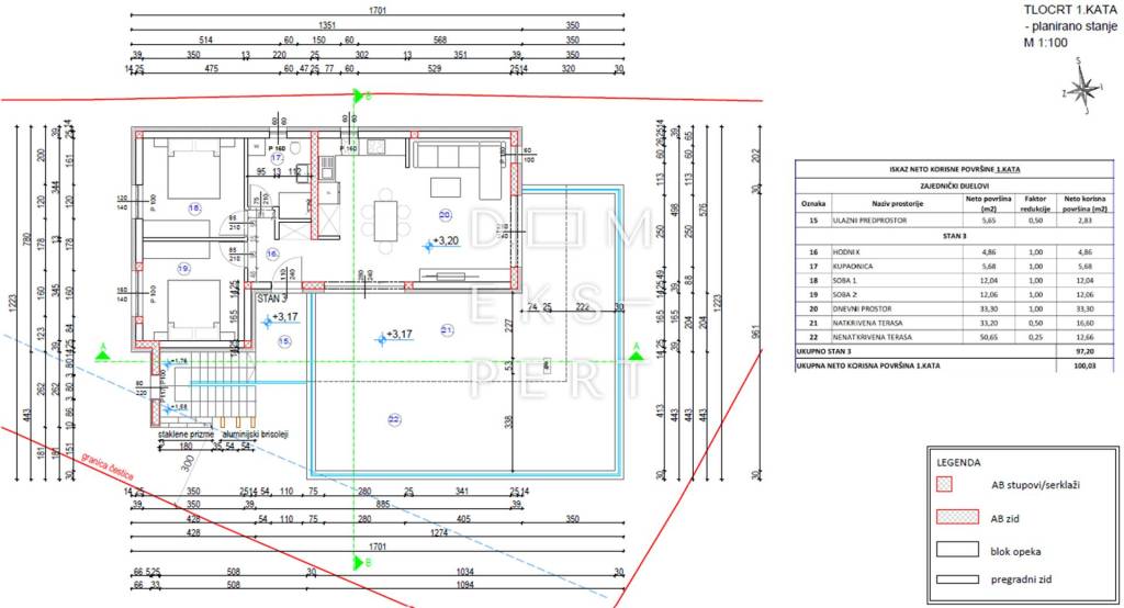
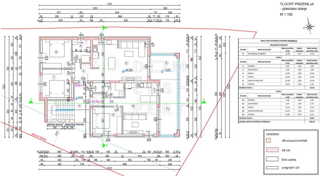
Prodaje se građevinsko zemljište s ishođenom pravomoćnom građevinskom dozvolom za stambeni objekt s 3 stana i 3 garažna parkirna mjesta.
Nalazi se u ulici Mikulići. Ukupna površina mu je 458 m², trapezastog je oblika.

Smješteno je u izgrađenom dijelu građevinskog područja, a namjena je stambena.

Budući objekt se sastoji od:
-PODRUMA (3 parkirna mjesta)
-PRIZEMLJA (s 2 stambene jedinice) površine 139.65 m²
-1.KATA (s 1 stambenom jedinicom) površine 100 m².

Pregled stanova:
Projektom su predviđene 3 stambene jedinice od čega su 2 stambene jedinice s 2 spavaće sobe i 1 stambena jedinica s 1 spavaćom sobom, a površine stanova u objektu su 55 m², 73 m² i 97 m².
Stanovima u prizemlju pripadaju dijelovi okućnice (vrta).

LOKACIJA:
Zemljište se nalazi u obiteljskom naselju Mikulići, udaljeno 7 km od centra Zagreba.
Naseljem prometuje linija ZET-ovog autobusa koji vozi do okretišta tramvaja na Črnomercu.

KONTAKT:
Mirna Poljak
Tel: 091 5444 915
E-mail: mirna.poljak@domekspert.hr

ID CODE: 2970
Características
Contrato
Venda
Tipologia
Terreno para construção
Superfície
460 m²
Informações de preço
Preço
€ 199.900
Preço por m²
435 €/m²
Planta
Descubra cada canto da propriedade
+5
Opções adicionais

Contactar o anunciante

Ou