Terreno para construção para Venda

€ 300.000
1.283 m²

Nota

Anúncio atualizado em 22/01/2026
Descrição

referência: E3789

Opatija okolica, Poljane, zemljište 1,283 m2 s građevinskom dozvolom za obiteljsku kuću ili za turističku namjenu

Atraktivno građevinsko zemljište s građevinskom dozvolom i već prijavljenim početkom gradnje. Izgradnja može započeti već 1. listopada 2025. – idealna prilika za one koji žele odmah krenuti s projektom!

Infrastruktura osigurana:

Struja
Voda
Kanalizacija
Pristupna cesta do terena

Planirana građevina:
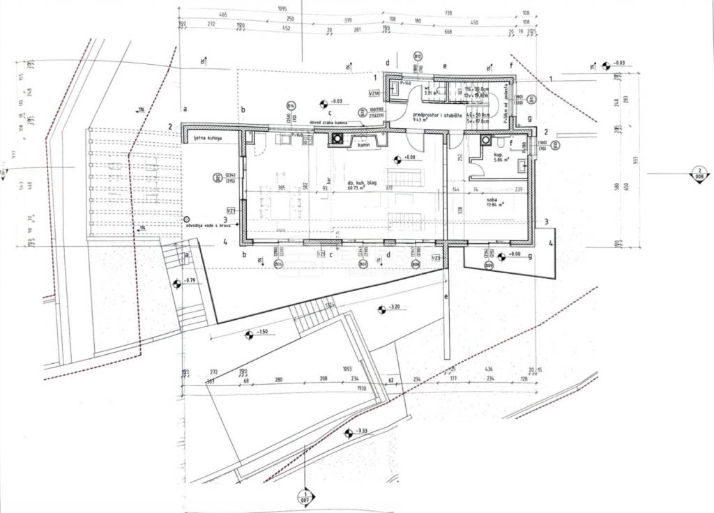
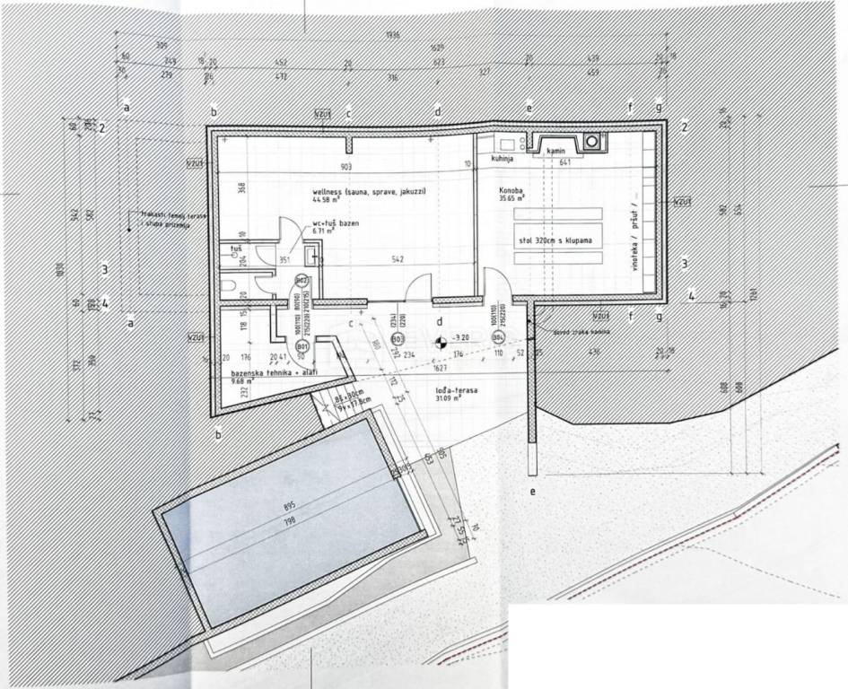
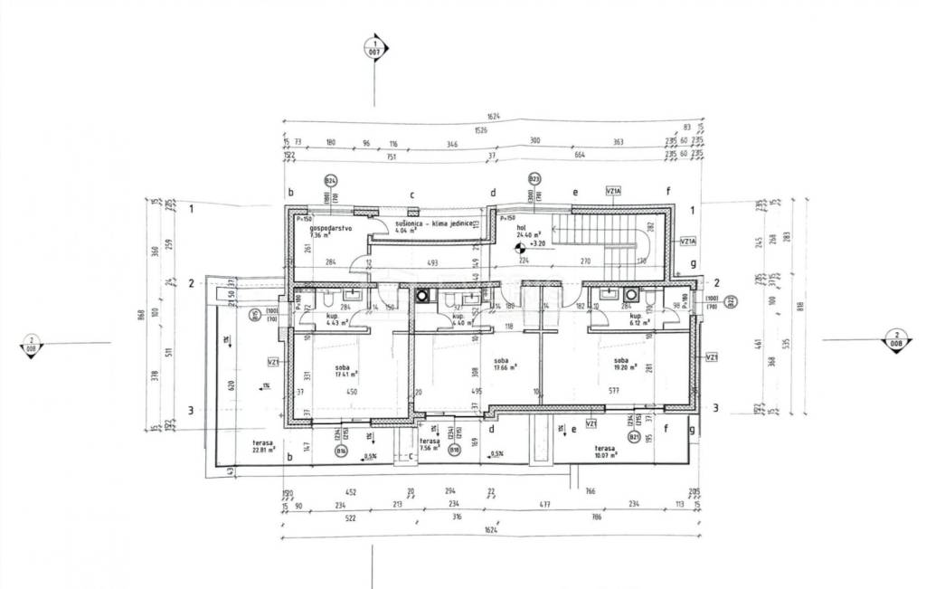
- stambena, obiteljska, samostojeća kuća s vanjskim bazenom, a koja se sastoji od tri etaže: suteren, prizemlje i kat, ukupne površine 298,8 m2.

U suterenu površine 127,70 m2 je smještena konoba, spremišta, wc-i s tuševima za potrebe bazena i strojarnica bazenske tehnike. Također, tu se nalazi bazen površine 36 m2 (dimenzija 8x4,5m). Svi prostori podrumske etaže imaju pristup isključivo izvana.

Prizemlje građevine, površine 97,2 m2 je glavna etaža – preko ulaznog predprostora u kojemu je smješten wc i vertikalna komunikacija (stubište za pristup katu) se pristupa sobi s kupaonom i terasom, kuhinji, blagovaonici i dnevnom boravku koji se prema jugu i zapadu proširuju na balkon/terasu s ljetnom kuhinjom otvorenom prema vanjskim, ozelenjenim, dijelovima parcele.

Na katu, površine 105 m2 se predviđaju “noćne” prostorije – tri spavaće sobe sa pripadajućim kupaonama, jedna radna soba namijenjena smještaju instalacija pripreme tople vode i uređaja za potrebe pranja rublja. Iz radne sobe se pristupa lođi orijentiranoj na sjever.

Za više dodatnih informacija slobodno nas kontaktirajte.

Poštovani klijenti, agencijska provizija naplaćuje se u skladu s Općim uvjetima poslovanja
EVERIS REAL ESTATE, koje možete preuzeti na našoj web stranici https://nekretnine.everis.hr/o-nama/opci-uvjeti-poslovanja

ID CODE: E3789

Davor Pezdevšek
Suradnik u procesu obuke
Mob: +385 (91) 5954 045
Tel: +385 (0)91 5954 045
E-mail: d.pezdevsek@everis.hr
https://nekretnine.everis.hr/

Želimir Bagić
Agent s licencom
Mob: +385 (91) 5954 045
Tel: +385 (0)91 5954 045
E-mail: z.bagic@everis.hr
https://nekretnine.everis.hr/
Características
Contrato
Venda
Tipologia
Terreno para construção
Superfície
1.283 m²
Informações de preço
Preço
€ 300.000
Preço por m²
234 €/m²
Planta
Opções adicionais

Contactar o anunciante

Ou