Vivenda plurifamiliar Umag, Centar, Luka, Finida, Umag

€ 520.000
5
125 m²
3
Não
Terraço

Nota

Anúncio atualizado em 22/01/2026
Descrição

This description has been translated automatically and may not be accurate

referência: 995

Istria, Umag - surroundings

House 1

A unique modern semi-detached house with a swimming pool in the vicinity of Umag is for sale.

The house is located in a quiet location surrounded by nature and greenery. It is 2.5 km from the town of Umag, 1.5 km from the sea, 7 km from the golf course and 13 km from the border crossing with Slovenia.

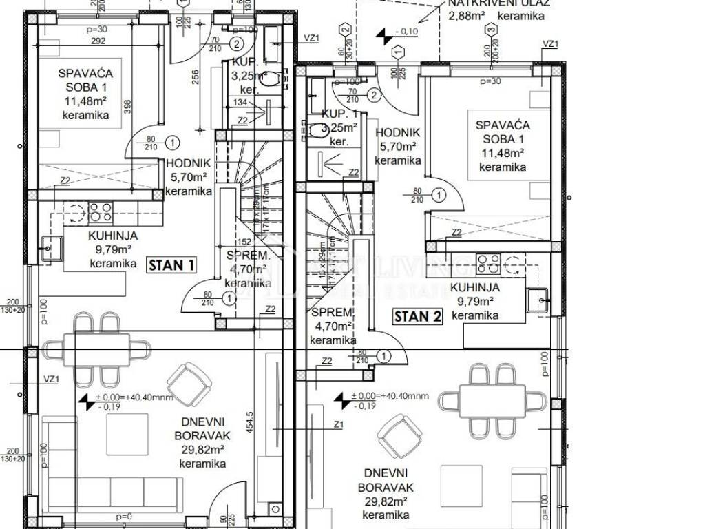
The surface of the house is 125 m2 and is spread over two floors, ground floor and first floor.

The ground floor consists of an entrance hall, a kitchen, a dining room and an open space living room, a bedroom, a bathroom and a storage room. The living room opens onto a spacious terrace.

We climb the internal stairs to the first floor where there is an entrance hall, a master bedroom with its own bathroom and balcony, two additional bedrooms and another bathroom.

A large heated swimming pool of 20 m2 with an arranged sunbathing area and two parking spaces will be located on the garden area of 300 m2.

High-quality construction with ALU carpentry in antarcite color with three-layer glass, 10 cm Styrofoam insulation and 1st-class parquet and ceramics ensure maximum comfort and convenience for future owners. The heating will be on the floor with a heat pump, while the cooling will be provided by the air conditioning system.

A quiet and beautiful location, close to the sea and the city center, a fenced plot and many rich amenities, makes this property an ideal opportunity for anyone looking for a nice, well-decorated house with its own garden in an attractive location that can be adapted for housing or vacation as well as for tourist purposes. .

Completion of construction and occupancy is scheduled for the summer of 2024.

PROPERTY CHARACTERISTICS

Modern architecture with a flat roof
Heated pool of 20 m2
High-quality construction
Air conditioners
Underfloor heating
Heat pumps
Peaceful and beautiful surroundings
Close to the sea and the city center

The commission of the agency for the buyer is 3% and is paid in the case of real estate purchase upon conclusion of the pre-contract or sales contract.

Dear clients, it is possible to view the property only with a signed mediation agreement, which is the basis for further actions related to the sale and commission, all in accordance with the Act on mediation in real estate transactions.

NOTE: We are not responsible for any errors in the property descriptions, but we want to be as precise and accurate as possible

ID CODE: 995

Mia Glad
Voditelj ureda
Mob: 091 784 8083
Tel: +385 91 784 80 83
E-mail: office@artliving-realestate.hr
www.artliving-realestate.hr
Características
Tipologia
Vivenda plurifamiliar
Contrato
Venda
Andares do Edifício
1
Elevador
Não
Superfície
125 m²
Quartos
5
Quartos
4
Casas de banho
3
Varanda
Não
Terraço
Sim
Estacionamento, lugares de estacionamento
2 em estacionamento compartilhado
Aquecimento
Individualizado, de ar
Ar condicionado
Ar condicionado, frio/quente
Informações de preço
Preço
€ 520.000
Preço por m²
4.160 €/m²
Eficiência energética
  • Ano de construção

    2024
  • Aquecimento

    Individualizado, de ar
  • Ar condicionado

    Ar condicionado, frio/quente
  • Certificação energética

    Não classificável
Descubra cada canto da propriedade
+16
Opções adicionais

Contactar o anunciante

Ou