Apartamento T3 Umag, Centar, Luka, Finida, Umag

€ 269.550
3
59 m²
1
r/c
Não

Nota

Anúncio atualizado em 22/01/2026
Descrição

This description has been translated automatically and may not be accurate

referência: 1451

Modern new building in Istria, Umag – Apartment S2A with 2 bedrooms and top-quality equipment, only 400 m from the sea!

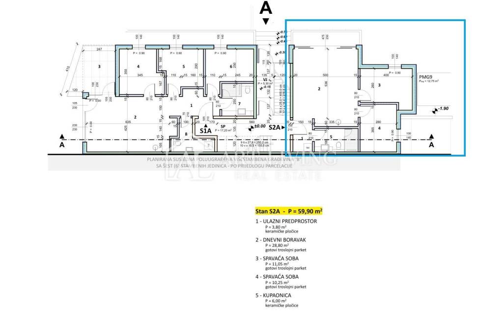
In an attractive location in Istria, near the town of Umag and only 400 meters from the first beaches, is located this modern, well-built building with only 12 residential units. In a quiet environment, ideal for living or vacation, is located apartment S2A on the ground floor, with a total area of ​​59.90 m².

The apartment consists of:

• Entrance hall (3.80 m²)
• Spacious living room with kitchen and dining room (28.80 m²)
• Two bedrooms: 11.05 m² and 10.25 m²
• Modern bathrooms (6.00 m²)

The apartment also comes with:
• One parking space in the underground garage
• Storage room (3.85 m²) for additional storage space




Quality of construction and top-notch equipment

The building is built according to the highest standards of modern construction and comfort, and the equipment we particularly highlight:

• High-standard ceramic tiles
• Three-layer parquet in the bedrooms
• Quality sanitary equipment
• Underfloor heating with water, via heat pump
• Fan-coil air conditioners in all rooms
• Smart home control system (heating, cooling, roller shutters...)
• Aluminum-PVC joinery with electric roller shutters
• Preparation for an alarm system



Additional Amenities

A heated swimming pool measuring 6 x 10 meters is planned to be built in the common garden of the building, which will be available to tenants for an annual fee. Ideal for relaxing during warm summer days, but also during the pre-season and post-season thanks to the possibility of heating the water.



Construction phase and completion date

The building is currently in the high-level roh-bau phase, and completion and move-in are planned by the end of 2025.



If you are looking for a combination of quality, modern technology and an attractive location near the sea and the city - this apartment represents an excellent opportunity whether you are looking for a home, vacation or investment!

For more information and a viewing, please contact us - we are at your disposal!

Dear clients, it is possible to view the property only with a signed brokerage contract, which is the basis for further actions related to the purchase and sale and the collection of commission, all in accordance with the Real Estate Brokerage Act.

The commission of the agency for the buyer is 3% + VAT and is paid in the case of real estate purchase upon conclusion of the pre-contract or sales contract.

NOTE: We are not responsible for any errors, but we want to be as precise and accurate as possible

AGENCY ID CODE: 1451

ID CODE: 1451

Mia Glad
Voditelj ureda
Mob: 091 784 8083
Tel: +385 91 784 80 83
E-mail: office@artliving-realestate.hr
www.artliving-realestate.hr
Características
Tipologia
Apartamento
Contrato
Venda
Andar
Rés-do-chão
Elevador
Não
Superfície
59 m²
Quartos
3
Quartos
2
Casas de banho
1
Varanda
Não
Terraço
Não
Estacionamento, lugares de estacionamento
1 em garagem, 1 em estacionamento compartilhado
Aquecimento
Individualizado, de ar
Ar condicionado
Ar condicionado, frio/quente
Outras características
  • Sistema de alarme
Informações de preço
Preço
€ 269.550
Preço por m²
4.569 €/m²
Eficiência energética
  • Ano de construção

    2025
  • Aquecimento

    Individualizado, de ar
  • Ar condicionado

    Ar condicionado, frio/quente
  • Certificação energética

    Não classificável
Planta
Descubra cada canto da propriedade
+14
Opções adicionais

Contactar o anunciante

Ou