Apartamento T2 Vidikovac, Zadar, Plovanija - Vidikovac, Zadar

€ 280.164
2
75 m²
1
2
Sim

Nota

Anúncio atualizado em 16/04/2026
Descrição

This description has been translated automatically and may not be accurate

referência: S-1346

ZADAR - Viewpoint, attractive offer of a new building with 9 residential units!

This new construction project with 9 residential units distributed over 3 above-ground floors is located in a quiet location: ground floor and two floors.
The apartments on the ground floor have a garden, and the apartments on the 2nd floor have a roof terrace.
All apartments have two outdoor parking spaces.

This one-room apartment S8 is located on the 2nd floor and consists of:
- Corridor 1 (6.15 m2)
- Bedrooms (10.86 m2)
- Kitchen + living room (22.69 m2)
- Bathrooms (4.63 m2)
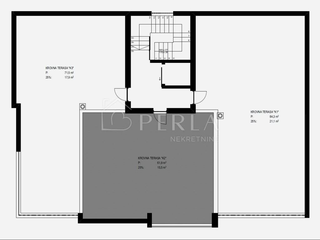
- Loggia (13.88 m2 gross - 10.41 m2 net)
- Roof terrace (61.94 m2 gross - 15.48 m2 net)
- 2 outdoor parking spaces (2 x 13.75 m2 - 5.50 m2 net)
Total: 147.65 m2.
The total net usable area of ​​the apartment with its annexes is 75.72 m2.

The following apartments are for sale in the building:
S1 - ground floor, two-room apartment with garden, 86.03 m2 – €292,502.00
S2 - ground floor, one-room apartment with garden, 64.85 m2 – €220,490.00
S3 - ground floor, two-room apartment with garden, 80.91 m2 – €275,094.00
S4 - 1st floor, two-room apartment, 81.19 m2 – €276,046.00
S5 - 1st floor, one bedroom apartment, 60.24 m2 - SOLD!
S6 - 1st floor, two-room apartment, 71.26 m2 - SOLD!
S7 - 2nd floor, two-room apartment with roof terrace, 102.26 m2 – €378,362.00
S8 - 2nd floor, one-room apartment with roof terrace, 75.72 m2 – €280,164.00
S9 - 2nd floor, two-room apartment with roof terrace, 89.13 m2 – €347,607.00

In the construction of the building, high-quality materials will be used in accordance with the highest construction standards, such as:
- Reinforced concrete construction with a thermal facade of 10 cm.
- PVC three-layer carpentry with electric blinds and mosquito nets.
- Air conditioning units will be installed in each room with the help of a multi-split system, and electric underfloor heating will be installed in the living room and bathrooms.
Equipment of the apartment:
- High quality parquet in the rooms and living room
- High quality ceramic tiles and sanitary ware
- Anti-burglary entrance door and video intercom at the entrance to the building
- Electric underfloor heating (in the bathroom and living room)
- Multisplit air conditioner (multiple indoor units)
- Elevator from the ground floor to the roof terrace
All installed materials, floor and wall coverings are of the highest standards.

The building is positioned in a very good and frequent location in the Vidikovac area.
The viewpoint stands out for its excellent connection with all parts of the city.
The building is located only 1500 m from the sea and 2500 m from the city center.
This great location is ideal for everyday life or investment because it is close to all social facilities such as a school, shop, pharmacy, and playground for children.
The building is under construction, and the planned completion of construction is by the end of 2026.

*THE BUYER DOES NOT PAY THE AGENCY COMMISSION!

ID CODE: S-1346

Alma Cipurković
Mob: +385 (0)91 400 1616
Tel: +385 (0)99 284 1984
E-mail: alma@perlanekretnine.hr
www.perlanekretnine.hr

Iva Prtenjača
Mob: +385 (0)91 400 1414
Tel: +385 (0)99 284 1984
E-mail: iva@perlanekretnine.hr
www.perlanekretnine.hr
Características
Tipologia
Apartamento
Contrato
Venda
Andar
2 andar
Andares do Edifício
2
Elevador
Sim
Superfície
75 m²
Quartos
2
Quartos
1
Casas de banho
1
Varanda
Não
Terraço
Não
Estacionamento, lugares de estacionamento
2 em estacionamento compartilhado
Aquecimento
Individualizado, de ar
Ar condicionado
Ar condicionado, frio/quente
Informações de preço
Preço
€ 280.164
Preço por m²
3.736 €/m²
Eficiência energética
  • Ano de construção

    2026
  • Aquecimento

    Individualizado, de ar
  • Ar condicionado

    Ar condicionado, frio/quente
  • Certificação energética

    Não classificável
Descubra cada canto da propriedade
+26
Opções adicionais

Contactar o anunciante

Ou