Apartamento T4 Sukošan, Sukošan

€ 355.000
4
83 m²
2
2
Não
Terraço

Nota

Anúncio atualizado em 02/03/2026
Descrição

This description has been translated automatically and may not be accurate

referência: 708

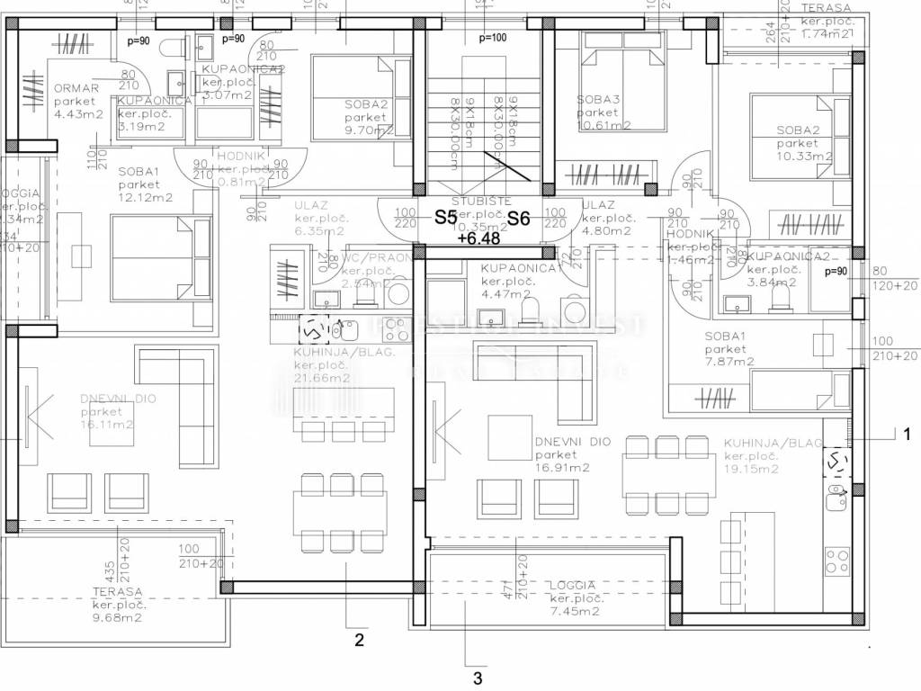
SUKOŠAN, NEWLY BUILT 3-BEDROOM PENTHOUSE S6 WITH ROOF TERRACE

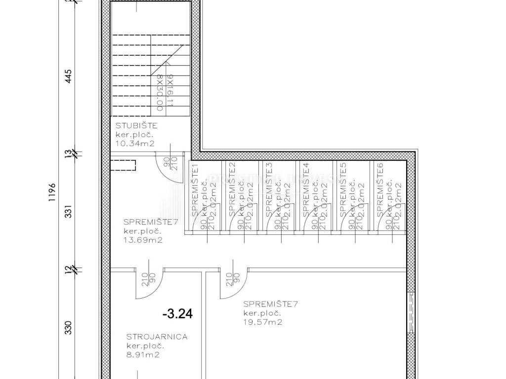
BUILDING with six residential units spread over three floors: ground floor, 1st and 2nd floor.

Each apartment has one parking space and storage room.
The penthouses also have roof terraces.

Area breakdown:
Entrance: 4.80m²
Living room: 16.91m²
Kitchen and dining room: 19.15m²
Bathroom 1: 4.47m²
Bathroom 2: 3.84m²
Bedroom 1: 10.61m²
Bedroom 2: 10.33m²
Bedroom 3: 7.87m²
Hallway: 1.46m²

Total net living area: 79.44m²
Total net usable area with accessories: 83.69m²

Appearance areas:
Loggia: 7.45m² × 0.75 = 5.58m²
Terrace (regular): 1.74m²
Parking space: 2.75m²
Storage room: 2.02m²
Roof terrace approx. 22m²

Other available residential units:
S3 (1st floor): 91.16m² – €273,480
S4 (1st floor): 83.69m² – €251,070
S5 (2nd floor, roof terrace): 87.82m² – €307,370
S6 (2nd floor, roof terrace): 83.69m² – €292,915

EQUIPMENT SPECIFICATIONS:
Underfloor heating and hot water preparation system via heat pump
Ceramic tiles and sanitary ware
Aluminum joinery with electric shutters and mosquito nets
Air conditioners in every room
Parquet floors in bedrooms; ceramic tiles in other rooms

Completion of construction: summer 2026

Ownership: legal entity in the VAT system
The buyer does not pay real estate tax

For additional information, photos, documentation or to arrange a viewing:
Phone: +385 95 73 55 171
E-mail: info@prestigeinvest.hr

ID CODE: 708

Ivana Ančić
Voditelj ureda
Mob: +385 95 73 55 171
Tel: +385 95 588 8082
E-mail: info@prestigeinvest.hr
www.prestigeinvest.hr
Características
Tipologia
Apartamento
Contrato
Venda
Andar
2 andar
Andares do Edifício
2
Elevador
Não
Superfície
83 m²
Quartos
4
Quartos
3
Casas de banho
2
Varanda
Não
Terraço
Sim
Estacionamento, lugares de estacionamento
1 em estacionamento compartilhado
Aquecimento
Individualizado, de ar
Ar condicionado
Ar condicionado, frio/quente
Informações de preço
Preço
€ 355.000
Preço por m²
4.277 €/m²
Eficiência energética

Consumo de energia

A+

Descubra cada canto da propriedade
+60
Opções adicionais

Contactar o anunciante

Ou