Apartamento T2 Vodice, Vodice

€ 200.000
2
57 m²
1
r/c
Não

Nota

Anúncio atualizado em 06/02/2026
Descrição

This description has been translated automatically and may not be accurate

referência: 7309-SJ3

Vodice, new construction, attractive location, the residential building consists of a total of 14 residential units.
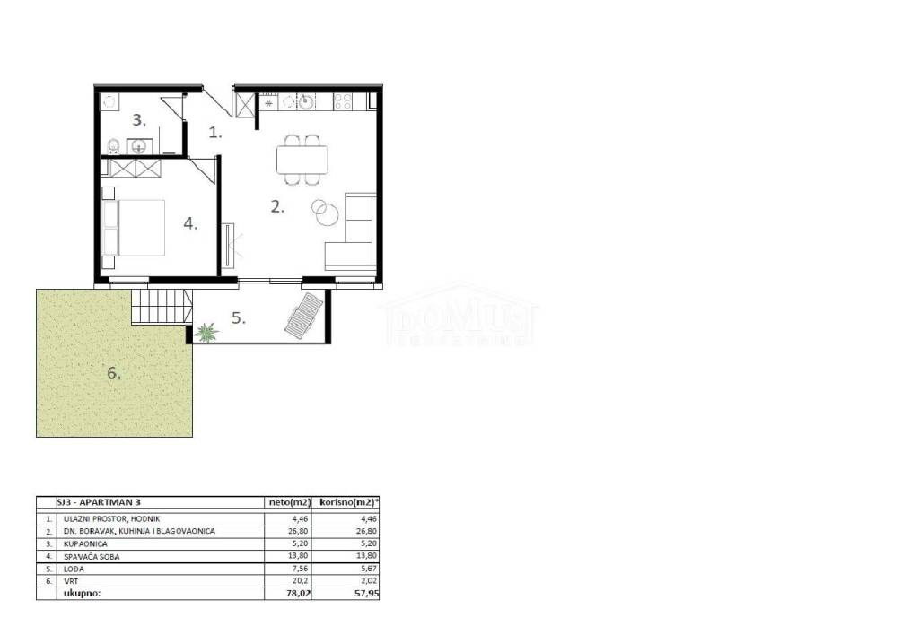
Apartment SJ3 is located on the ground floor of the building, with a total usable area of 57,95 m². It comprises an entrance hall, a bathroom, one bedroom, a kitchen, and a living room with access to a 7.56 m² loggia. The apartment features a modern design and a functional layout, and is equipped with air conditioning units in the living room and bedroom, a security entrance door, PVC joinery, and modern bathroom fittings. The apartment also includes a 20.2 m² garden. One or two parking spaces available for purchase (subject to availability). It is located 800 m from the sea and 500 m from the town centre and all essential amenities. The expected move-in date is summer 2026. The buyer is exempt from the 3% property tax.

ID CODE: 7309-SJ3

Katarina Marasović
Mob: 00 385 98 392 954
Tel: +385 22 444 620
Fax: +385 22 444 621
E-mail: catherine@domus-nekretnine.hr
http://domus-nekretnine.hr

Diana Knežević
Mob: 00 385 95 289 4518
Tel: +385 22 444 620
Fax: +385 22 444 621
E-mail: knezevic@domus-nekretnine.hr
http://domus-nekretnine.hr

Martina Silov
Mob: 00385 95 587 8860
Tel: +385 22 444 620
Fax: +385 22 444 621
E-mail: martina@domus-nekretnine.hr
http://domus-nekretnine.hr
Características
Tipologia
Apartamento
Contrato
Venda
Andar
Rés-do-chão
Andares do Edifício
2
Elevador
Não
Superfície
57 m²
Quartos
2
Quartos
1
Casas de banho
1
Varanda
Não
Terraço
Não
Aquecimento
Individualizado, de ar
Outras características
  • Porta blindada
Informações de preço
Preço
€ 200.000
Preço por m²
3.509 €/m²
Eficiência energética
  • Ano de construção

    2026
  • Aquecimento

    Individualizado, de ar
  • Certificação energética

    Não classificável
Planta
Opções adicionais

Contactar o anunciante

Ou