1/15


Vivenda familiar Rovinj, Rovinj
€ 360.000
Anúncio atualizado em 10/03/2026
Descrição
referência: 300571003-931
ID CODE: 300571003-931
Marko Rubbi
Prodajni predstavnik
Mob: +385 91 641 5035
Tel: +385 51 499 800
Fax: +385 51 499 801
E-mail: m.rubbi@remax-istra.hr
remax-centarnekretnina.com
Características
- Tipologia
- Vivenda familiar
- Contrato
- Venda
- Elevador
- Não
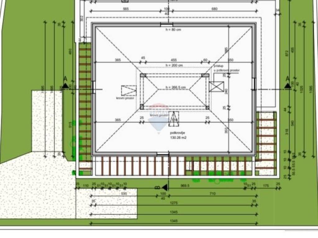
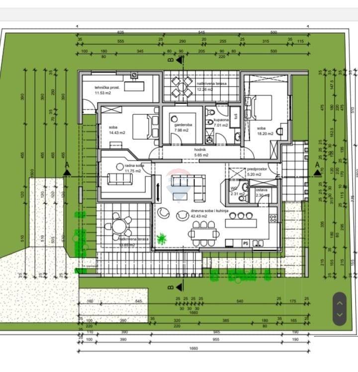
- Superfície
- 135 m²
- Quartos
- 5+
- Quartos
- 3
- Varanda
- Não
- Terraço
- Não
- Ar condicionado
- Ar condicionado, frio/quente
Informações de preço
- Preço
- € 360.000
- Preço por m²
- 2.667 €/m²
Eficiência energética
Ar condicionado
Ar condicionado, frio/quenteCertificação energética
Não classificável
Descubra cada canto da propriedade
Opções adicionais