1/10


Vivenda familiar Stranići kod Lovreča, Sveti Lovreč, Sveti Lovreč
€ 950.000
Anúncio atualizado em 22/01/2026
Descrição
referência: 300391030-252
ID CODE: 300391030-252
Idnir Jahić
Prodajni predstavnik
Mob: +385 91 641 0001
Tel: +385 52 435 428
E-mail: i.jahic@remax-istra.hr
www.remax-centarnekretnina.com
Características
- Tipologia
- Vivenda familiar
- Contrato
- Venda
- Andares do Edifício
- 2
- Elevador
- Não
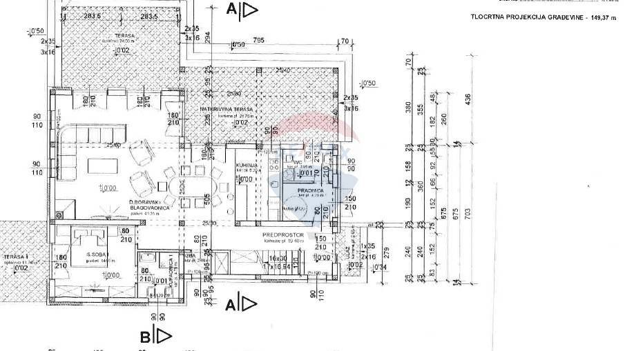
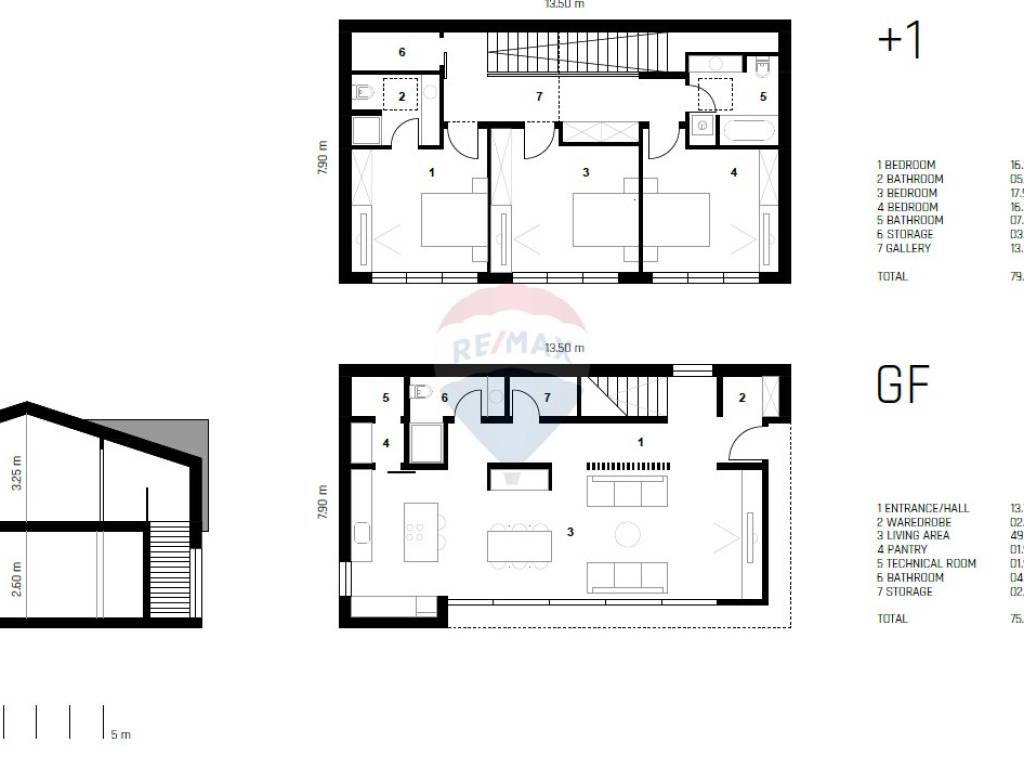
- Superfície
- 208 m²
- Quartos
- 5
- Quartos
- 4
- Varanda
- Sim
- Terraço
- Não
Informações de preço
- Preço
- € 950.000
- Preço por m²
- 4.567 €/m²
Eficiência energética
Ano de construção
2023Certificação energética
Não classificável
Descubra cada canto da propriedade
Opções adicionais