Escritório - Estúdio para Venda

€ 2.100.000
5+
1.025 m²
3+

Nota

Anúncio atualizado em 22/01/2026
Descrição

referência: 300621003-1292

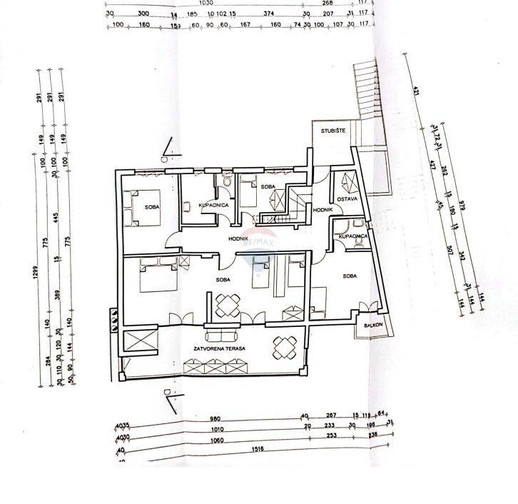
Na prodaju je stambeno-poslovna zgrada koja uključuje restoran i osam stambenih jedinica. Ukupna površina objekta iznosi 1025m2, a proteže se na četiri etaže. Zgrada ima pristup s dvije strane ulice, što pruža različite mogućnosti korištenja.

Na prizemnoj etaži (suteren 1) nalazi se poslovni prostor od 227m2 koji trenutno funkcionira kao restoran. Ovaj prostor sastoji se od kuhinje (24m2), spremišta, sale (54m2), toaleta, zatvorene terase (118m2) te dodatnih spremišta i toaleta.

Na prvom katu (suteren 2) smješteni su dva stana i kotlovnica za cijelu zgradu. Prvi stan ima površinu od 150m2 i sastoji se od tri spavaće sobe, dva predsoblja, dvije kupaonice, kuhinje s blagovaonicom, dnevnog boravka te posebne blagovaonice koja služi kao uredski prostor, uz zatvorene terase. Drugi stan ima površinu od 68m2 i sastoji se od kupaonice, kuhinje s blagovaonicom, predsoblja, spavaće sobe, radne sobe te balkona.

Na drugom katu (prizemlje) nalaze se još dva stana. Prvi stan ima površinu od 90m2 i sastoji se od četiri spavaće sobe, balkona, dvije kupaonice, dva hodnika, kuhinje s blagovaonicom i dnevnog boravka. Drugi stan ima površinu od 50m2 i sastoji se od kupaonice, spavaće sobe, kuhinje s blagovaonicom, dnevnog boravka i predsoblja.

Na trećem katu (kat) nalaze se još dva stana. Prvi stan ima površinu od 106m2 i sastoji se od tri spavaće sobe, kupaonice, toaleta, hodnika te zatvorene terase. Drugi stan ima površinu od 20m2 i sastoji se od ostave, kupaonice, spavaće sobe i terase.

Na četvrtom katu (potkrovlje) nalaze se dva stana. Prvi stan ima površinu od 73m2 i sastoji se od tri spavaće sobe, kupaonice, kuhinje s blagovaonicom, dnevnog boravka te zatvorene terase. Drugi stan ima površinu od 42m2 i sastoji se od spavaće sobe, kupaonice, kuhinje s blagovaonicom, dnevnog boravka te balkona.

Ova zgrada nalazi se na svega 350 metara udaljenosti od centra, te uz volju budućeg vlasnika može se urediti kao objekt za smještaj turista ili kao hostel.

ZA VIŠE INFORMACIJA I ZAKAZIVANJE RAZGLEDA, SLOBODNO SE OBRATITE NAŠIM POUZDANIM AGENTIMA:

JELENA SINDIČIĆ
Licencirana agenticа
+385916413138
j.sindicic@remax-krk.hr

MIRELA PETROVIĆ
Licencirana agenticа
+385916413300
m.petrovic@remax-krk.hr

Naši agenti su spremni odgovoriti na sva vaša pitanja i dogovoriti termin za pregled nekretnine.

ID CODE: 300621003-1292

Mirela Petrović
Prodajni predstavnik
Mob: +385 91 641 3300
Tel: +385 51 309 703
E-mail: m.petrovic@remax-krk.hr
remax-centarnekretnina.com

Jelena Sindičić
Prodajni predstavnik
Mob: +385 91 641 3138
Tel: +385 51 309 703
E-mail: j.sindicic@remax-krk.hr
remax-centarnekretnina.com
Características
Contrato
Venda
Tipologia
Escritório - Estúdio
Superfície
1.025 m²
Quartos
5+ quartos, 3+ casas de banho
Andares do Edifício
4
Informações de preço
Preço
€ 2.100.000
Preço por m²
2.049 €/m²
Eficiência energética
  • Ano de construção

    1984
  • Ar condicionado

    Ar condicionado, frio/quente
  • Certificação energética

    Não classificável
Planta
Descubra cada canto da propriedade
+10
Opções adicionais

Contactar o anunciante

Ou