Terreno para construção para Venda

€ 125.000
1.000 m²

Nota

Anúncio atualizado em 10/03/2026
Descrição

referência: 300421024-703

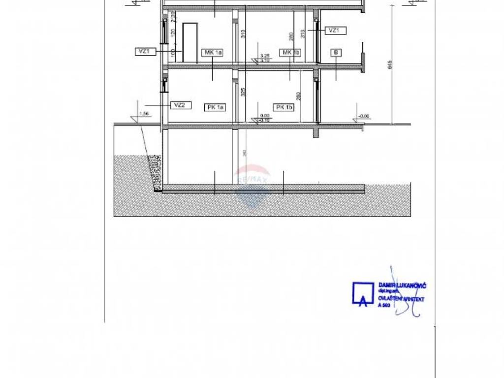
KASTAV,BELIĆI- RE/MAX centar nekretnina iz svoje ponude izdvaja građevinsko zemljište 1000 m2 blizu centra sa idejnim projektom.

Prodaje se zemljište 1000 m2, na odličnoj lokaciji u Belićima, u neposrednoj blizini centra Kastva.
Od 1000 m2, 628 m2 je građevinsko, dok je 372 m2 negrađevinsko.
Zemljište je potpuno ravno, pravilnog (pravokutnog) oblika, okruženo zelenilom što osigurava privatnost i mir, jugoistočne orijentacije, sunčano tijekom cijelog dana s pogledom na zelenilo i šumu.
Pristupni put je osiguran, a sva potrebna infrastruktura s priključcima nalazi se odmah do terena.
Teren ima idejni projekt za obiteljsku kuću (Po+P+1) 228 m2.

Idealna lokacija za izgradnju obiteljske kuće ili manje stambene zgrade (do 3 stana) zbog blizine centra Kastva, autobusa, škole vrtića, supermarketa, dućana, pošte, banke i svih sadržaja potrebnih za svakodnevni život (sve se nalazi na pješačkoj udaljenosti).

ID CODE: 300421024-703

Vjeran Šaina
Prodajni predstavnik
Mob: +385 91 641 7001
Tel: +385 51 551 871
E-mail: v.saina@remax-opatija.hr
remax-centarnekretnina.com
Características
Contrato
Venda
Tipologia
Terreno para construção
Superfície
1.000 m²
Informações de preço
Preço
€ 125.000
Preço por m²
125 €/m²
Descubra cada canto da propriedade
+9
Opções adicionais

Contactar o anunciante

Ou