Apartamento T3 Vodice, Vodice

€ 300.000
3
91 m²
1
r/c
Não
Terraço

Nota

Anúncio atualizado em 22/01/2026
Descrição

This description has been translated automatically and may not be accurate

referência: 4133-S1

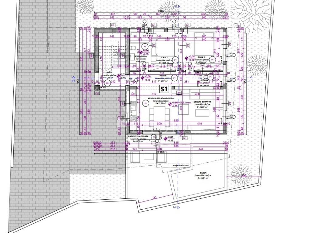
In Vodice, in a peaceful environment and a smaller residential building with a total of three apartments, there is a two-bedroom apartment with a garden and a swimming pool, with a total usable area of 91.93 m². Apartment S1 is located on the ground floor and has a living area of 69.59 m². It consists of a hallway, storage room, bathroom, two bedrooms, and a living room with a kitchen and dining area, from which there is access to a 13.59 m² terrace and a garden with a swimming pool. The apartment will be equipped with underfloor heating in the kitchen with dining area, living room, and bathroom, air conditioning units in the bedrooms and living room, PVC windows with shutters and mosquito screens, electric shutter lifters, as well as high-quality ceramic tiles and sanitary fittings. The garden has a total area of 100.58 m² and includes a swimming pool of 16.71 m². The apartment also comes with two parking spaces. The property is located 1,100 m from the beach and 900 m from the town center. The planned move-in date is the end of 2027.

ID CODE: 4133-S1

Divna Bulat
Agent s licencom
Mob: +385 91 6367 574
E-mail: divna@litora-nekretnine.hr
www.litora-nekretnine.hr

Dijana Banović
Agent s licencom
Mob: +385 98 192 6220
E-mail: dijana@litora-nekretnine.hr
www.litora-nekretnine.hr

Milica Štrkalj
Agent s licencom
Mob: +385 95 342 5722
E-mail: milica@litora-nekretnine.hr
www.litora-nekretnine.hr
Características
Tipologia
Apartamento
Contrato
Venda
Andar
Rés-do-chão
Andares do Edifício
2
Elevador
Não
Superfície
91 m²
Quartos
3
Quartos
2
Casas de banho
1
Varanda
Não
Terraço
Sim
Estacionamento, lugares de estacionamento
2 em estacionamento compartilhado
Aquecimento
Individualizado, de ar
Ar condicionado
Ar condicionado, frio/quente
Informações de preço
Preço
€ 300.000
Preço por m²
3.297 €/m²
Eficiência energética
  • Ano de construção

    2026
  • Aquecimento

    Individualizado, de ar
  • Ar condicionado

    Ar condicionado, frio/quente
  • Certificação energética

    Não classificável
Descubra cada canto da propriedade
+4
Opções adicionais

Contactar o anunciante

Ou