1/7


Apartamento T4 Pješčana Uvala, Medulin, Pješčana Uvala, Vinkuran, Medulin
€ 756.450
Anúncio atualizado em 22/01/2026
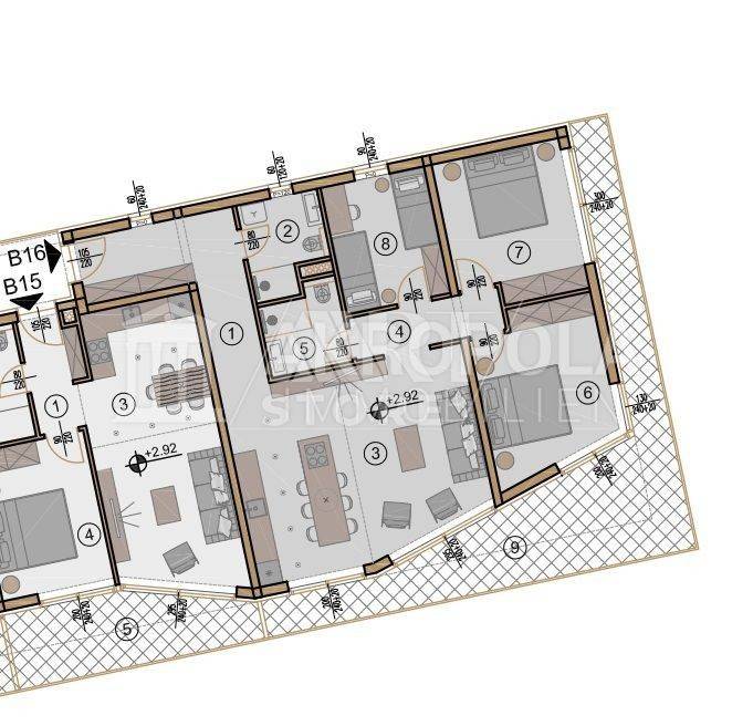
Descrição
referência: MA-832
ID CODE: MA-832
Mila Marković
Agent s licencom
Mob: 00385976199610
Tel: 097 619 9610
E-mail: milamarkovic5@gmail.com
www.akropola-immobilien.com
Características
- Tipologia
- Apartamento
- Contrato
- Venda
- Andar
- 1 andar
- Elevador
- Sim
- Superfície
- 100 m²
- Quartos
- 4
- Quartos
- 3
- Casas de banho
- 2
- Varanda
- Não
- Terraço
- Sim
- Estacionamento, lugares de estacionamento
- 1 em garagem
- Ar condicionado
- Ar condicionado, frio/quente
Informações de preço
- Preço
- € 756.450
- Preço por m²
- 7.565 €/m²
Eficiência energética
Descubra cada canto da propriedade
Opções adicionais