Apartamento T3 Sveti Petar na Moru, Sveti Filip I Jakov, Sveti Filip i Jakov

€ 395.000
3
86 m²
1
2
Sim
Terraço

Nota

Anúncio atualizado em 31/03/2026
Descrição

This description has been translated automatically and may not be accurate

referência: 125-77

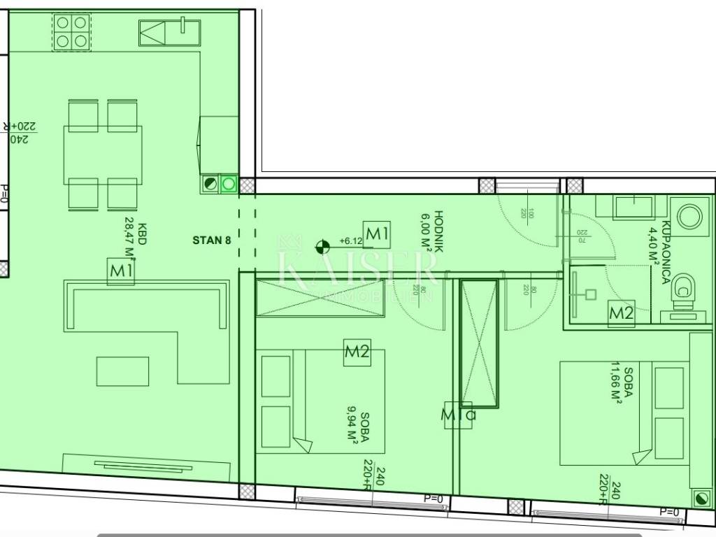
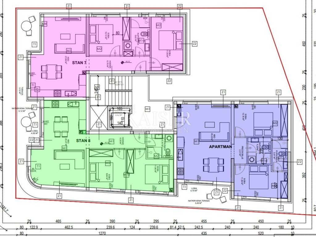
Kaier Immobilien presents: St.Peter - Modern apartment on the second floor with a roof terrace - 86.99 m² In a modern new building, located in a quiet and attractive location in St.Peter, only 150m from the sea, a two-room penthouse under construction is for sale, on the second floor with a spacious roof terrace. The total area of the apartment is 86.99 m², and it perfectly combines functionality, comfort and top quality construction. The start of construction is September 2025. , completion of construction June 2026. The apartment consists of: Living room with kitchen and dining room – 28.47 m² Hallway – 6.00 m² Bedroom 1 – 11.66 m² Bedroom 2 – 9.94 m² Bathrooms – 4.40 m² Loggia – 3.04 m² Covered terrace – 4.58 m² Roof terrace – 16.40 m² Parking space – 2.50 m² Top quality construction is ensured by carefully selected materials and modern construction standards. PVC joinery with sound and thermal insulation provides maximum energy efficiency and comfort, while high-quality ceramics contribute to an elegant and long-lasting interior. The floors are covered with top-quality parquet, which ensures warmth and a sophisticated look of the space. The entire structure is complemented by a modern facade with excellent thermal insulation, which achieves optimal energy savings and a pleasant atmosphere in every part of the apartment. The ownership is neat 1/1, and the apartment has all the necessary documentation and permits to start construction. The apartment is part of a quality new building, designed with an emphasis on comfort and modern design. The roof terrace offers additional space for outdoor enjoyment, while the parking space provides security and convenience. The agency commission for the buyer is 3% + VAT and is paid in the case of purchasing a property, upon conclusion of the first legal act. Contact us with confidence. Tel: +385992510230 Email: marijana.papic@kaiser-immobilien.hr

ID CODE: 125-77

Marijana Papić
Agent posredovanja u prometu nekretnina
Mob: +385992510230, +385995677888
E-mail: marijana.papic@kaiser-immobilien.hr
www.kaiser-immobilien.hr
Características
Tipologia
Apartamento
Contrato
Venda
Andar
2 andar
Andares do Edifício
2
Elevador
Sim
Superfície
86 m²
Quartos
3
Quartos
2
Casas de banho
1
Varanda
Não
Terraço
Sim
Estacionamento, lugares de estacionamento
1 em estacionamento compartilhado
Ar condicionado
Ar condicionado, frio/quente
Informações de preço
Preço
€ 395.000
Preço por m²
4.593 €/m²
Eficiência energética

Consumo de energia

A

Descubra cada canto da propriedade
+6
Opções adicionais

Contactar o anunciante

Ou