Vivenda familiar Poreč, Luka, Poreč

€ 1.250.000
5
267 m²
3+
Não
Terraço

Nota

Anúncio atualizado em 21/04/2026
Descrição

This description has been translated automatically and may not be accurate

referência: 113-250

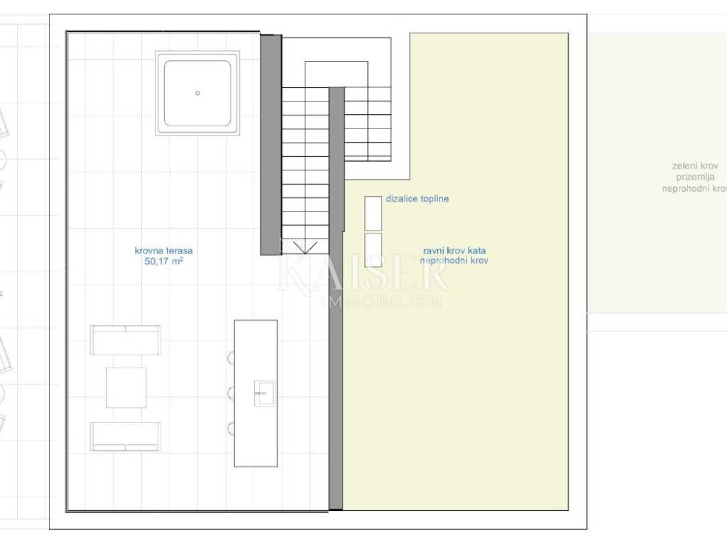
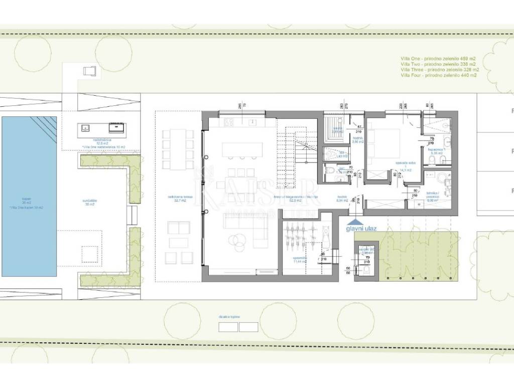
Kaiser Immobilien is proud to present a modern and luxurious detached villa just 5 km from the town of Poreč, which is being sold fully furnished. The villa is located in a popular tourist resort near the town of Poreč, surrounded by nature, peace and quiet, and yet close to all the necessary amenities for life. The villa was built with top quality materials, where attention was paid to every detail to make life in the villa as simple and luxurious as possible for the future owner. The villa is fully equipped and is being sold as such. The villa contains all the requirements of the permit and can also be rented out. Gross area of the villa is: 267 m2 (only closed areas are counted) Net area of the interior living area: 204 m2 (closed area) Net area of the covered and uncovered area: 310 m2 (sun deck, canopy, balconies, paths, fire pit, roof terrace and external staircase) Parking: the villa has 3 parking spaces for cars and one for bicycles (total parking area approx. 50 m2) Swimming pool - 35 m2 of water surface Energy class: A (20 kWh/m2 per year) Floor plan: P+1 (ground floor + first floor), built in a classic construction. New construction. Sea view. The ground floor consists of an entrance hall, staircase to the first floor and roof terrace, living room, kitchen and dining room, bedroom with separate bathroom, additional toilet, bathroom and sauna, technical rooms with laundry room and storage room and external toilet, each with a separate entrance. On the first floor there is a staircase, a hallway, three bedrooms with separate bathrooms and a fully furnished study. Staircase to access the roof terrace, which has an outdoor bar, sundeck and hot tub. The surroundings include an outdoor heated pool, sundeck, covered dining terrace, canopy with summer kitchen and uncovered terrace directly next to the pool. There is a fire pit in the lower part of the courtyard. There is also a designer outdoor shower with hot water and a floor siphon in the courtyard. The supporting structure of the main building rests on strip foundations, and the walls are a combination of brick block masonry and reinforced concrete construction. The interfloor and roof slabs are reinforced concrete. The external canopy is made of steel construction. The partition walls are classically built with brick blocks. The leased electricity power is 18.86 kW - three-phase.

ID CODE: 113-250

Ivana Gašparini
Agent s licencom u posredovanju u prometu nekretnina
Mob: +385923782803, +385995677888
E-mail: ivana@kaiser-immobilien.hr
www.kaiser-immobilien.hr
Características
Tipologia
Vivenda familiar
Contrato
Venda
Andares do Edifício
1
Elevador
Não
Superfície
267 m²
Quartos
5
Quartos
4
Casas de banho
3+
Varanda
Não
Terraço
Sim
Estacionamento, lugares de estacionamento
3 em estacionamento compartilhado
Ar condicionado
Ar condicionado, frio/quente
Outras características
  • Sistema de alarme
Informações de preço
Preço
€ 1.250.000
Preço por m²
4.682 €/m²
Eficiência energética

Consumo de energia

A

Descubra cada canto da propriedade
+46
Opções adicionais

Contactar o anunciante

Ou