Vivenda familiar Garica, Vrbnik, Vrbnik

€ 850.000
5
227 m²
3+
Não
Terraço

Nota

Anúncio atualizado em 21/04/2026
Descrição

This description has been translated automatically and may not be accurate

referência: 105-83

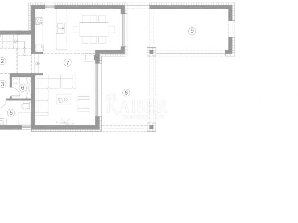
Kaiser immobilien presents a luxurious modern stone villa located near Vrbnik. The villa is located in the central part of the golden island of Krk, which is connected to the mainland by a bridge. The villa will be built and ready for occupancy by the end of 2023 on a plot of approx. 900 m2, living area of ​​227 m2. On the ground floor there is a living room, dining room, kitchen, one bedroom and one bathroom, and a storage room. Upstairs there are three bedrooms, each with a bathroom, and two of the rooms open onto a spacious terrace. From the terrace as well as the Mediterranean garden with olive trees and lavender bushes and a beautiful swimming pool, you can enjoy socializing and warm summer evenings. This luxury villa is technically first-class equipped and, among other things, has underfloor heating, air conditioning, summer kitchen, swimming pool, alarm system, parquet and stone floors. The distance to the sea coast is approx. 5000 m, as well as to the picturesque Vrbnik, a town on a rock with restaurants, wineries, shops, cafes and other facilities.

ID CODE: 105-83

Lado Patekar
Agent s licencom u posredovanju u prometu nekretnina
Mob: +385919390220, +385995677888
E-mail: lado@kaiser-immobilien.hr
www.kaiser-immobilien.hr
Características
Tipologia
Vivenda familiar
Contrato
Venda
Andares do Edifício
1
Elevador
Não
Superfície
227 m²
Quartos
5
Quartos
4
Casas de banho
3+
Varanda
Não
Terraço
Sim
Estacionamento, lugares de estacionamento
4 em estacionamento compartilhado
Aquecimento
Individualizado, de ar
Ar condicionado
Ar condicionado, frio/quente
Outras características
  • Sistema de alarme
Informações de preço
Preço
€ 850.000
Preço por m²
3.744 €/m²
Eficiência energética
  • Ano de construção

    2023
  • Aquecimento

    Individualizado, de ar
  • Ar condicionado

    Ar condicionado, frio/quente
  • Certificação energética

    Não classificável
Descubra cada canto da propriedade
+28
Opções adicionais

Contactar o anunciante

Ou