Vivenda familiar 145 m², Savudrija, Zambratija, Crveni Vrh, Umag

€ 600.000
5+
145 m²
2
Sim
Varanda
Terraço
Mobilado

Nota

Anúncio atualizado em 18/03/2026
Descrição

This description has been translated automatically and may not be accurate

referência: 44696

ISTRIA, UMAG - Detached house with two separate apartments, garage and garden

In a quiet and well-maintained settlement near Umag, there is a detached house ideal for family life, tourist rental or long-term investment. The house consists of two completely separate living spaces, with their own entrances and secured parking spaces, which provides maximum privacy and functionality. The house is well-built, with an emphasis on durability, functionality and a pleasant stay, and the layout allows for separate use of the two residential units or a combination of private living and rental.

Basic characteristics of the property

House floor area: 145 m
Garden area: 592 m
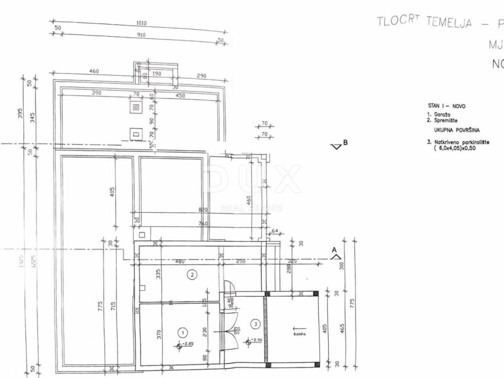
Garage: 17.76 m
Storage: 23.92 m

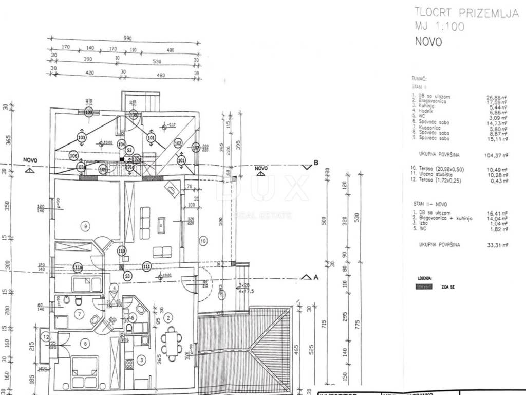
APARTMENT 1 GROUND FLOOR, usable area 104.37 m with 3 bedrooms

Spacious and bright apartment perfect for family life.
*Living room with entrance 26.88 m, exit to terrace 10.49 m
*Dining room 17.59 m
*Kitchen 5.44 m
*Hallway 6.86 m
*WC 3.09 m
*Bedroom 14.73 m with terrace 0.43 m
*Bedroom 8.87 m
*Bedroom 15.11 m
*Bathroom 5.80 m
*Entrance staircase 10.28 m

Heating: central heating with pellets

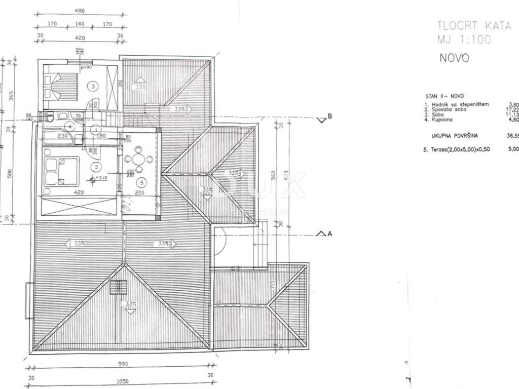
APARTMENT 2 TWO-LEVEL usable area 69.86 m with 2 bedrooms

Ground floor 33.31 m
*Living room with entrance 16.41 m
*Dining room with kitchen - 14.04 m
*Exterior 1.04 m
*Toilet 1.82 m
Floor 36.55 m
*Hallway with stairs - 3.60 m
*Master bedroom 17.22 m, exit to the terrace 5 m
*Bedroom 11.13 m
*Bathroom 4.60 m

Heating: central floor gas heating

Location advantages

Murine is one of the most desirable settlements in Umag, known for its peace, orderliness and high quality of life, with excellent connections and proximity to all facilities. The center of Umag and well-kept beaches are only a few minutes' drive away, while Slovenia and Italy are quickly and easily accessible. There are shops, restaurants, schools and sports facilities nearby.

The area exudes an authentic Istrian atmosphere, surrounded by wineries and olive groves, famous gastronomic destinations, cycling and hiking trails and tennis courts, offering a healthy and relaxed Mediterranean lifestyle.

Excellent investment for tourist and long-term rental
South orientation - plenty of natural light throughout the day
Large garden, garage and additional storage
Quality construction and smart layout

A property that offers security, peace and long-term value - whether for living or as an investment in Istria.

For additional information and viewing, please feel free to contact us.

Dear clients, the agency commission is charged in accordance with the General Terms and Conditions.
www.dux-nekretnine.hr/opci-uvjeti-poslovanja

ID CODE: 44696

DUX Pula
Mob: +385 92 476 5008
Tel: +385 91 480 8808
E-mail: info@dux-istra.com
www.dux-istra.com

Aldin Begić
Agent pripravnik
Mob: +385 95 391 9185
Tel: +385 91 480 8808
E-mail: aldin@dux-istra.com
www.dux-istra.com

Deniro Osmanović
Agent pripravnik
Mob: +385 99 371 3802
Tel: +385 91 480 8808
E-mail: deniro@dux-istra.com
www.dux-istra.com
Características
Tipologia
Vivenda familiar
Contrato
Venda
Andar
1
Elevador
Sim
Superfície
145 m² | comercial 738 m²
Quartos
5+
Quartos
5
Casas de banho
2
Mobilado
Sim
Varanda
Sim
Terraço
Sim
Estacionamento, lugares de estacionamento
1 em garagem
Ar condicionado
Ar condicionado, frio/quente
Detalhe da superfície

Habitação

Andar
1
Superfície
145,0 m²
Coeficiente
100%
Tipo de superfície
Principal
Sup comercial
145,0 m²

Terreno

Andar
Rés-do-chão
Superfície
593,0 m²
Coeficiente
100%
Tipo de superfície
Acessórios
Sup comercial
593,0 m²
Informações de preço
Preço
€ 600.000
Preço por m²
813 €/m²
Eficiência energética
  • Ar condicionado

    Ar condicionado, frio/quente
  • Certificação energética

    Livre
Descubra cada canto da propriedade
+7
Opções adicionais

Contactar o anunciante

Ou