Duplex Poreč, Luka, Poreč

€ 365.000
5
140 m²
1
Não
Varanda

Nota

Anúncio atualizado em 23/01/2026
Descrição

This description has been translated automatically and may not be accurate

referência: 1039-262

Poreč, surroundings, charming autochthonous house!

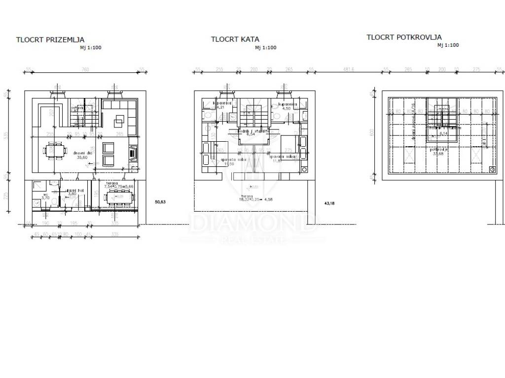
This charming autochthonous Istrian house is located just 3 km from Poreč and the first beaches. Its total area is 140 m2 and is spread over three floors. On the ground floor of the house there is a living room, kitchen, dining room and bathroom, on the first floor there are two bedrooms, each with its own well-equipped bathroom and access to the terrace, and on the second floor there is a gallery of 40 m2 that can be divided into two more bedrooms. The internal staircase will be lit by a 180*140 m roof window with remote control. The living room will lead directly to the terrace where the swimming pool is located. The pool will be salt water. Heating of the entire house and water will be via air conditioning, and there is a possibility of installing a pellet or wood stove. The parking lot is located in front of the gate. All amenities for life are located a few minutes away by car.

This property is an ideal investment for family life as well as for tourist rental.

ID CODE: 1039-262
Características
Tipologia
Duplex
Contrato
Venda
Andares do Edifício
3
Elevador
Não
Superfície
140 m²
Quartos
5
Quartos
4
Casas de banho
1
Varanda
Sim
Terraço
Não
Ar condicionado
Ar condicionado, frio/quente
Informações de preço
Preço
€ 365.000
Preço por m²
2.607 €/m²
Eficiência energética
  • Ano de construção

    1900
  • Ar condicionado

    Ar condicionado, frio/quente
  • Certificação energética

    Não classificável
Descubra cada canto da propriedade
+25
Opções adicionais

Contactar o anunciante

Ou