Apartamento T4 novo, rés-do-chão, Vodice

€ 540.000
4
168 m²
3
1
Terraço

Nota

Anúncio atualizado em 28/01/2026
Descrição

This description has been translated automatically and may not be accurate

referência: 44828

ŠIBENIK, VODICE - Luxury triplex with pool and sea view

Residential unit S1 in a luxury triplex in Vodice is for sale.

This property is not intended for buyers looking for a compromise between price and location.
It is intended for those for whom luxury, sea view, privacy and quality of construction are a priority.

A modern triplex building with three separate residential units, each with a separate entrance, its own pool and garden, is being built on a lofty and elite location in Vodice.
The residential units extend through the ground floor and first floor, and S2 and S3 additionally have a roof terrace designed for a jacuzzi and a place to relax with a view of the sea.

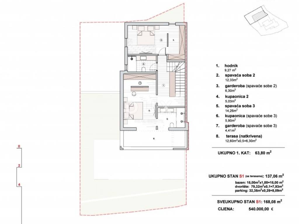
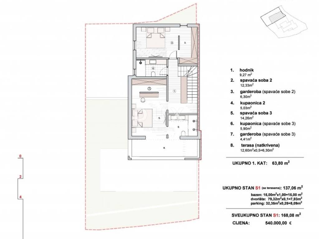
Residential unit S1 is spread over the ground floor and the first floor, and has a total usable area of 168.08 m2.

The ground floor includes a bedroom, a bathroom and a spacious living room with an open space concept kitchen and dining room. A large glass wall connects the interior with the terrace, pool and garden, with constant visual contact with the sea.
Upstairs there are two bedrooms, the master bedroom with its own bathroom and access to a private terrace, and an additional bathroom.

The apartment will be equipped according to high standards of modern construction, using quality materials and technical solutions aimed at long-term energy efficiency and comfort.
Modern aluminum joinery, underfloor heating via heat pumps, air conditioning in all rooms, a combination of parquet in the living areas and ceramic floors in the bathrooms and utility rooms are planned.
This standard of equipment ensures a high level of living comfort, low maintenance costs and a stable value of the property over time.

If you are looking for a luxurious new building in a rare location with a permanent sea view, this property deserves your attention.

VODICE A charming town of nightlife and beaches
Vodice is a tourist destination located 10 kilometers north of Šibenik.
Vodice boasts great hotels, beaches and a rich nightlife offer.
Nearby is the small island of Prvić, the city of Split is 69 km away, Zadar is 59 km away, and the nearest airport is 49 km away.

For additional information or to arrange a viewing, please feel free to contact us.

Dear clients, the agency commission is charged in accordance with the General Terms and Conditions:
www.dux-nekretnine.hr/opci-uvjeti-poslovanja

ID CODE: 44828

Ivan Bego
Agent pripravnik
Mob: +385 91 312 1121
Tel: +385 91 480 8808
E-mail: ivan@dux-dalmacija.com
www.dux-nekretnine.hr
Se quiser saber mais, pode falar com Ivan Bego.
Características
Tipologia
Apartamento
Contrato
Venda
Andar
1
Superfície
168 m² | comercial 247 m²
Quartos
4
Quartos
3
Casas de banho
3
Varanda
Não
Terraço
Sim
Ar condicionado
Ar condicionado, frio/quente
Detalhe da superfície

Habitação

Andar
1
Superfície
168,0 m²
Coeficiente
100%
Tipo de superfície
Principal
Sup comercial
168,0 m²

Terreno

Andar
Rés-do-chão
Superfície
79,0 m²
Coeficiente
100%
Tipo de superfície
Acessórios
Sup comercial
79,0 m²
Informações de preço
Preço
€ 540.000
Preço por m²
2.186 €/m²
Eficiência energética
  • Ano de construção

    2026
  • Estado

    Novo / Em construção
  • Ar condicionado

    Ar condicionado, frio/quente
  • Certificação energética

    Livre
Descubra cada canto da propriedade
+16
Opções adicionais

Contactar o anunciante

Ou