Vivenda plurifamiliar Murter, Murter-Kornati

€ 550.000
4
113 m²
2
Não
Terraço

Nota

Anúncio atualizado em 04/02/2026
Descrição

This description has been translated automatically and may not be accurate

referência: 880-D

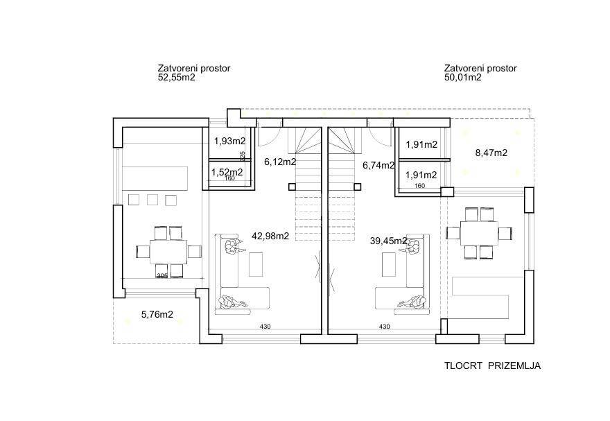
A new modern semi-detached house is offered for sale on Murter, designed according to contemporary architectural concepts and built in line with the latest construction standards. The right unit comprises 113.20 m² of net enclosed living space, arranged over the ground floor and first floor, with carefully planned outdoor areas. On the ground floor there is a spacious loggia of 8.47 m², while the rooftop terrace of 53.60 m² represents one of the key advantages of this property, offering generous space for relaxation, social gatherings and outdoor living.

The ground floor is conceived as a bright and airy open-plan living area with kitchen and dining room, with access to the loggia, while the first floor includes bedrooms and bathrooms, providing a functional and comfortable layout. The house will be equipped with underfloor heating, a smart home management system and air conditioning in all rooms, ensuring a high level of comfort and energy efficiency. The property is being built by a company, with construction planned to begin in the first quarter of this year and completion expected in early 2027.

The location is highly attractive, approximately 550 metres from Slanica beach and around 400 metres from the centre of Murter. Murter is known for its authentic Dalmatian atmosphere, crystal-clear sea and excellent connection to the mainland, making this property ideal for year-round living, holidays or a secure investment in tourist rental.

ID CODE: 880-D

Bonum nekretnine
Mob: 095 750 5763
Tel: 022 644 555
E-mail: info@bonum.com.hr
www.bonum-nekretnine.com
Características
Tipologia
Vivenda plurifamiliar
Contrato
Venda
Andares do Edifício
1
Elevador
Não
Superfície
113 m²
Quartos
4
Quartos
3
Casas de banho
2
Varanda
Não
Terraço
Sim
Estacionamento, lugares de estacionamento
1 em estacionamento compartilhado
Aquecimento
Individualizado, de ar
Ar condicionado
Ar condicionado, frio/quente
Informações de preço
Preço
€ 550.000
Preço por m²
4.867 €/m²
Eficiência energética
  • Ano de construção

    2026
  • Aquecimento

    Individualizado, de ar
  • Ar condicionado

    Ar condicionado, frio/quente
  • Certificação energética

    Não classificável
Descubra cada canto da propriedade
+10
Opções adicionais

Contactar o anunciante

Ou