Apartamento T3 Poreč, Luka, Poreč

€ 500.000
3
107 m²
1
1
Não
Terraço

Nota

Anúncio atualizado em 30/03/2026
Descrição

This description has been translated automatically and may not be accurate

referência: S3083

Luxury Apartment with Roof Terrace and Private Jacuzzi – The Perfect Combination of Comfort and Style

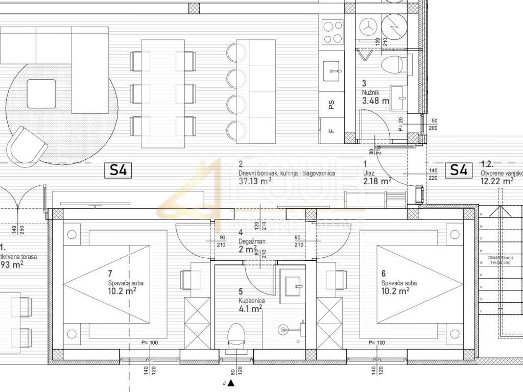
For sale is an impressive new apartment, spread over 107.97m2. This luxury apartment with sea views is an ideal place to live and relax, perfect for those looking for privacy, comfort and a high standard.

The apartment consists of two bedrooms, a spacious living room, a kitchen with a dining area, two bathrooms, a dressing room and a covered terrace, which is the perfect place to enjoy the outdoors. In addition, the apartment offers an impressive roof terrace of 69.34m2 that offers incredible views of the sea and the surrounding nature – ideal for relaxation and entertainment.

The orientation of the apartment to the south and west allows for plenty of sunlight throughout the day, and modern heating and cooling systems, including underfloor heating, air conditioning and a heat pump, ensure a high energy standard and a comfortable stay in any season. Aluminum joinery, security doors, electric shutters and a boiler room are just some of the luxurious details that further enhance the quality of life.
For complete luxury, the apartment is equipped with a jacuzzi, ideal for relaxing after a busy day. Privacy is guaranteed thanks to a separate entrance to the building, while two outdoor parking spaces are provided for the owners.

This property is located only 800 meters from the sea, which allows quick access to the coast and all the beauty it offers. Do not miss the opportunity to become the owner of this exclusive apartment!

Dear clients, the agency commission is charged in accordance with the General Terms and Conditions.

ID CODE: S3083

Ured Istra
Mob: +385994441443
E-mail: info@four-nekretnine.hr
www.four-nekretnine.hr
Características
Tipologia
Apartamento
Contrato
Venda
Andar
1 andar
Elevador
Não
Superfície
107 m²
Quartos
3
Quartos
2
Casas de banho
1
Varanda
Não
Terraço
Sim
Estacionamento, lugares de estacionamento
2 em estacionamento compartilhado
Ar condicionado
Ar condicionado, frio/quente
Informações de preço
Preço
€ 500.000
Preço por m²
4.673 €/m²
Eficiência energética
  • Ar condicionado

    Ar condicionado, frio/quente
  • Certificação energética

    Não classificável
Descubra cada canto da propriedade
+6
Opções adicionais

Contactar o anunciante

Ou