Terreno para construção para Venda

€ 39.900
303 m²

Nota

Anúncio atualizado em 30/01/2026
Descrição

referência: 6249

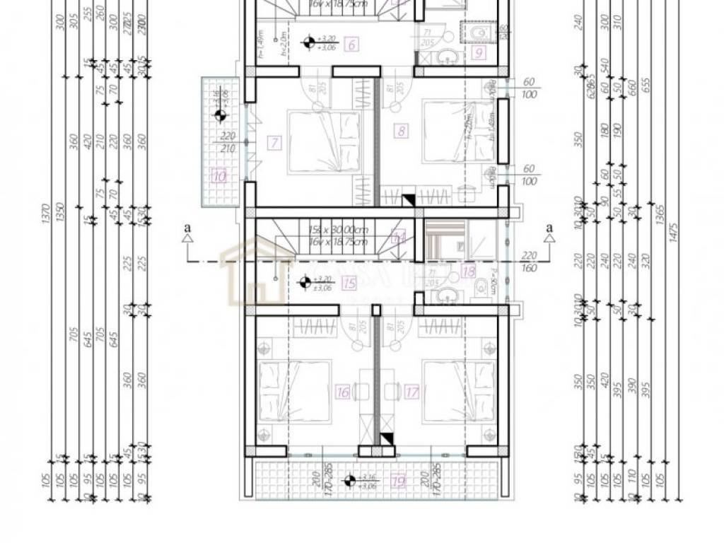
U mirnom dijelu Fužina prodaje se građevinsko zemljište površine 303 m², s izdanom građevinskom dozvolom i plaćenim komunalijama, što omogućuje brz početak gradnje bez dodatnih postupaka.
Teren je ravan, uredan i pravilnog oblika, bez prepreka za izvođenje radova.
Priključci su dostupni u neposrednoj blizini.

Postojeća dozvola predviđa izgradnju kuće (p+1) sa dvije dvoetažne stambene jedinice površine 79 m² i 94 m².

Lokacija i gotova dokumentacija čine zemljište prikladnim za izgradnju kuće za život ili ulaganje u turistički najam, s obzirom na potražnju u Fužinama tijekom cijele godine.

ID CODE: 6249

Dario Jovanović, bacc.oec.
Agent s licencom
Mob: +385976645685
E-mail: djovanovic@casabellanekretnine.hr
www.casabellanekretnine.hr
Características
Contrato
Venda
Tipologia
Terreno para construção
Superfície
303 m²
Informações de preço
Preço
€ 39.900
Preço por m²
132 €/m²
Descubra cada canto da propriedade
+5
Opções adicionais

Contactar o anunciante

Ou