Terreno para construção para Venda

€ 74.000
1.375 m²

Nota

Anúncio atualizado em 29/04/2026
Descrição

referência: 16355

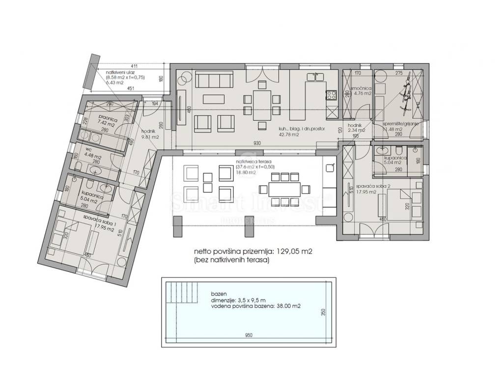
PRODAJA, GRAĐEVINSKO ZEMLJIŠTE S IDEJNIM PROJEKTOM, PAZIN, 1.375 M2

Na prodaju je građevinsko zemljište koje dolazi s izrađenim idejnim projektom za modernu kuću mediteranskog stila.
Projekt spaja suvremenu arhitekturu s tradicionalnim elementima koristeći prirodne materijale poput kamena, drva i betona. Velike staklene površine i jednostavne linije osiguravaju puni vizualni kontakt interijera s krajolikom i planiranim bazenom.

Predani su zahtjevi za ishodovanje posebnih uvjeta priključenja. Kupcu se nudi i usluga ishodovanja građevinske dozvole i praćenja izgradnje. U tom slučaju bi plaćanje gotove kuće bilo po fazama izgradnje.

IDEJNI PROJEKT DIZAJN
Planirana kuća ima otvorene prostore, obilje prirodnog svjetla i terase koje se nastavljaju na okoliš, čineći objekt idealnim za miran i komforan život.

RASPORED (PREMA IDEJNOM PROJEKTU)
Prizemlje:

Otvoren dnevni boravak s kuhinjom i blagovaonicom

Gospodarska prostorija s toaletom

Spavaća soba s vlastitom kupaonicom

Velike klizne stijene otvaraju se prema natkrivenoj terasi i bazenu

Kat:

Dvije spavaće sobe, svaka s vlastitom kupaonicom

Predviđeni materijali i završna obrada:

Parket u stambenim prostorijama

Keramičke pločice u kupaonicama

PLANIRANE ZNAČAJKE I OPREMA

Grijanje i hlađenje: Toplinska pumpa, podno grijanje u kupaonicama, fan-coil jedinice u ostalim prostorijama

Kamin: Otvoreni kamin u dnevnom boravku

Bazen: 38 m, kameni rub, mozaik obloga, kamena sunčališna terasa

Udaljenost od mora: 28 km

Prilika! Cijena 75.000 Eura.

Za sve ostale informacije nazovite 099/320-0011.

ID KOD AGENCIJE: 16355

Danijela Urlić - PODRUČJE ISTRA
Agent s licencom
Mob: +385/(0)99/320-0011
E-mail: danijela.urlic@smart-invest.hr
www.smart-invest.hr
Se quiser saber mais, pode falar com Danijela Urlić - PODRUČJE ISTRA.
Características
Contrato
Venda
Tipologia
Terreno para construção
Superfície
1.375 m²
Informações de preço
Preço
€ 74.000
Preço por m²
54 €/m²
Descubra cada canto da propriedade
+13
Anunciante
agent male

Danijela Urlić - PODRUČJE ISTRA

cartão de agência
Opções adicionais

Contactar o anunciante

Ou
agent male

Danijela Urlić - PODRUČJE ISTRA