Apartamento T3 novo, primeiro andar, Novalja

€ 245.000
3
76 m²
1
1
Não

Nota

Anúncio atualizado em 27/03/2026
Descrição

This description has been translated automatically and may not be accurate

referência: I33029

New Development in Stara Novalja, 2-Bedroom Apartment with Terrace

In Stara Novalja, just a few minutes from the sea, three small buildings with six apartments each are being constructed, built to high construction standards and featuring a modern, elegant design.
All buildings have almost identical apartment sizes and layouts. Each floor contains two two-bedroom apartments with private terraces.

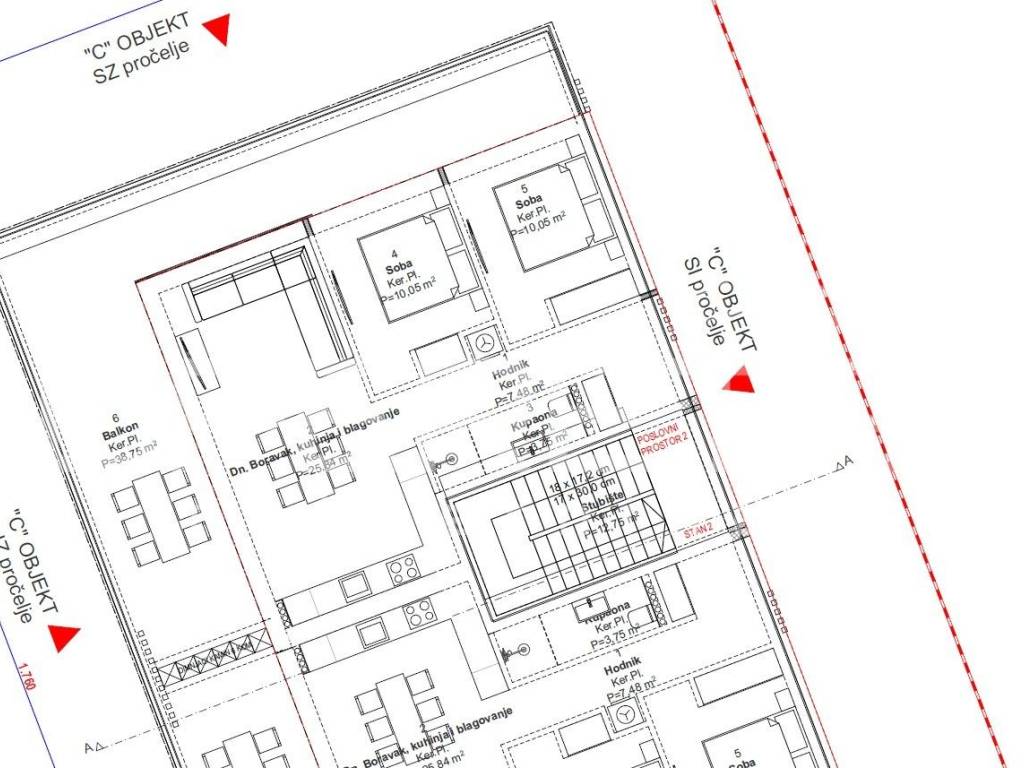
Building C, Apartment 3, First Floor
It consists of two bedrooms, an open-plan living room and kitchen, and a large covered terrace.
The price of each apartment includes a free parking space and a stone barbecue.

The layout is functional and easy to furnish, with emphasis on spacious outdoor areas and a bright living space.
Each bedroom and the living room have their own air conditioning unit, three in total, while the bathrooms are equipped with underfloor heating.

The building is being constructed with reinforced concrete, 15 cm of exterior thermal insulation, triple-glazed aluminum lift-and-slide windows with stop-sol reflective coating, high-quality ceramic finishes in all rooms, and security entrance doors.
The interior rooms are separated by double-layered drywall with stone wool insulation, ensuring enhanced acoustic and fire protection.
The buildings entrance doors are Inotherm aluminum security doors, the staircase is fire-protected and each apartment is equipped with a video intercom.

All necessary permits are expected to be obtained in the first quarter of 2026, and viewings are possible by prior arrangement.

Stara Novalja attracts with its peaceful surroundings, proximity to beaches and crystal-clear sea, while also offering good connections to the rest of the island and amenities in Novalja.
This new development combines modern design, high construction standards, secured parking and a quiet location.
Características
Tipologia
Apartamento
Contrato
Venda
Andar
1 andar
Elevador
Não
Superfície
76 m²
Quartos
3
Quartos
2
Casas de banho
1
Mobilado
Não
Estacionamento, lugares de estacionamento
1 em estacionamento compartilhado
Aquecimento
Individualizado, fonte de alimentação elétrica
Ar condicionado
Frio/quente
Informações de preço
Preço
€ 245.000
Preço por m²
3.224 €/m²
Eficiência energética
  • Ano de construção

    2026
  • Estado

    Novo / Em construção
  • Aquecimento

    Individualizado, fonte de alimentação elétrica
  • Ar condicionado

    Frio/quente
Descubra cada canto da propriedade
+8
Opções adicionais

Contactar o anunciante

Ou