Apartamento T4 novo, primeiro andar, Centar, Luka, Finida, Umag

€ 311.000
4
72 m²
1
1
Varanda
Cave

Nota

Anúncio atualizado em 30/04/2026
Descrição

This description has been translated automatically and may not be accurate

referência: 642

Quality apartment with sea view in Lovrečica in a great location

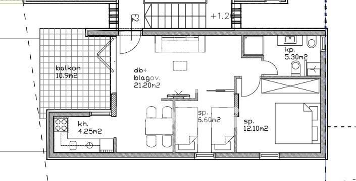
A two-bedroom apartment for sale in an attractive location just 200 meters from the sea with a large yard in Lovrečica.

It has 49.56m2 of net usable area + 10.90m2 of covered terrace, while the remaining area belongs to the storage room (11m2) and the apartment has two parking spaces, one of which is covered and one is uncovered.

This quality apartment consists of an open space living room with kitchen and dining room, two bedrooms and a bathroom.

It is heated by air conditioning and underfloor heating in the bathroom.

Quality materials were used in the construction, rock wool insulation, security doors, aluminum windows with electric shutters and mosquito nets.

Quality materials and proximity to the sea are something that will surely delight you!

www.leones-realestate.hr
Características
Tipologia
Apartamento
Contrato
Venda
Andar
1 andar
Superfície
72 m²
Quartos
4
Quartos
2
Casas de banho
1
Mobilado
Não
Varanda
Sim
Estacionamento, lugares de estacionamento
1 em estacionamento compartilhado
Aquecimento
Individualizado, piso radiante, fonte de alimentação elétrica
Ar condicionado
Frio/quente
Outras características
  • Porta blindada
Informações de preço
Preço
€ 311.000
Preço por m²
4.319 €/m²
Eficiência energética

Consumo de energia

A

Descubra cada canto da propriedade
+21
Opções adicionais

Contactar o anunciante

Ou