Vila familiar 151 m², nova, Centar, Luka, Finida, Umag

€ 390.000
4
151 m²
3
Varanda
Cave

Nota

Anúncio atualizado em 16/02/2026
Descrição

This description has been translated automatically and may not be accurate

referência: 589

Terraced house with sea view near Umag

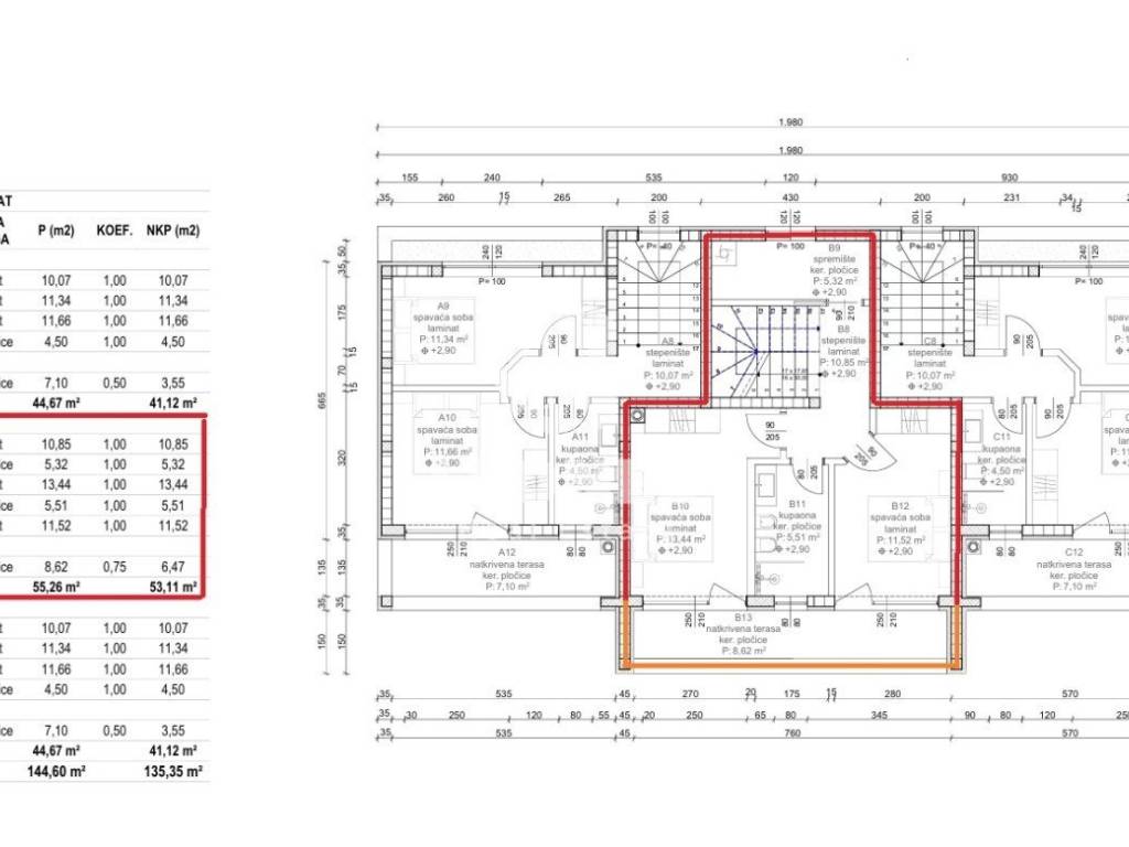
Modern terraced house for sale (unit B) with sea view near Umag. The net usable area of the house is 151.14 m2, while the area of the garden is about 70 m2. On the ground floor there is a toilet, a pantry, a kitchen with a dining room and a living room with access to a covered terrace. On the first floor, there are 2 bedrooms with access to the covered terrace, a bathroom and a storage room. On the second floor, there is a bedroom with its own bathroom and storage room, as well as a large terrace with a view of the sea.

A predisposition for a heat pump is provided for heating, while cooling is provided by an air conditioning unit.

The facade will be energy-efficient (10 cm styrofoam), while the joinery will be triple-glazed. It has 2 parking spaces. The start of construction is planned for the end of 2025. The house is located in a peaceful environment and is ideal for living as well as for renting for tourist purposes.

The distance of the house from the sea and the town of Umag is 1.5 km.

www.leones-realestate.hr
Características
Tipologia
Vila familiar
Contrato
Venda
Andar
1
Andares do Edifício
3
Superfície
151 m² | comercial 221 m²
Quartos
4
Quartos
3
Casas de banho
3
Mobilado
Não
Varanda
Sim
Estacionamento, lugares de estacionamento
1 em estacionamento compartilhado
Aquecimento
Individualizado, piso radiante, fonte de alimentação elétrica
Ar condicionado
Frio/quente
Outras características
  • Porta blindada
Detalhe da superfície

Habitação

Andar
1
Superfície
151,0 m²
Coeficiente
100%
Tipo de superfície
Principal
Sup comercial
151,0 m²

Terreno

Andar
Rés-do-chão
Superfície
70,0 m²
Coeficiente
100%
Tipo de superfície
Acessórios
Sup comercial
70,0 m²
Informações de preço
Preço
€ 390.000
Preço por m²
1.765 €/m²
Eficiência energética

Consumo de energia

A

Descubra cada canto da propriedade
+7
Opções adicionais

Contactar o anunciante

Ou