Vivenda familiar 145 m², nova, Centar, Luka, Finida, Umag

€ 403.000
5+
145 m²
2

Nota

Anúncio atualizado em 09/02/2026
Descrição

This description has been translated automatically and may not be accurate

referência: 2723

We are selling a building under construction near the beautiful town of Umag.

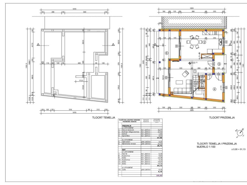
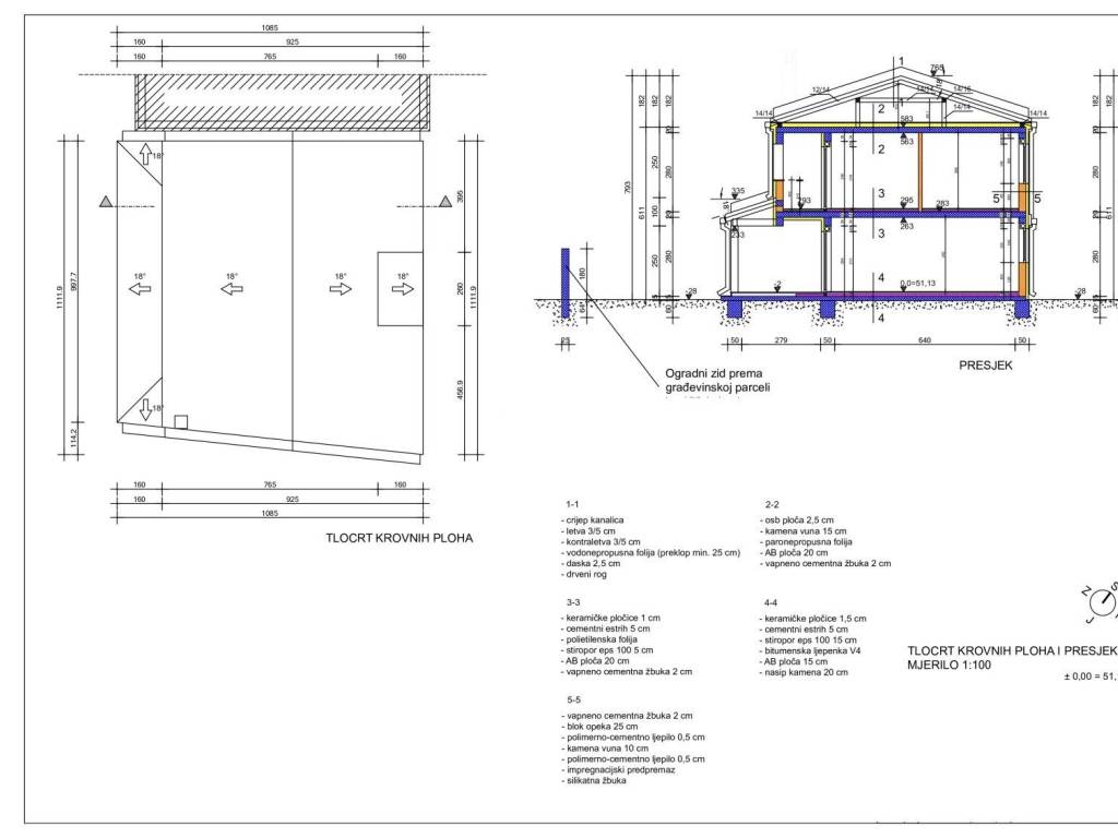
This house with an area of 145m2 spreads over the ground floor and the first floor. The ground floor contains an entrance hall, storage room, toilet, kitchen with dining room and living room with access to the yard. Internal stairs lead to the first floor where there are two bathrooms and three bedrooms. One of the bedrooms has a private bathroom, while the other two share one bathroom. In addition, one of the bedrooms has its own terrace.

The heating and cooling system operates via air conditioning, and for additional comfort, underfloor heating will be installed.

This building also includes two parking spaces.

Since the building is still under construction, the future owner has the option of customizing the interior. In agreement with the investor, he can choose ceramics, interior joinery, and colors of the interior and exterior walls.

The planned completion of construction is the end of 2025.
Características
Tipologia
Vivenda familiar
Contrato
Venda
Andar
Rés-do-chão
Andares do Edifício
1
Superfície
145 m²
Quartos
5+
Quartos
3
Casas de banho
2
Mobilado
Não
Estacionamento, lugares de estacionamento
1 em estacionamento compartilhado
Aquecimento
Individualizado, fonte de alimentação elétrica
Ar condicionado
Frio/quente
Outras características
  • Porta blindada
Informações de preço
Preço
€ 403.000
Preço por m²
2.779 €/m²
Eficiência energética
  • Ano de construção

    2025
  • Estado

    Novo / Em construção
  • Aquecimento

    Individualizado, fonte de alimentação elétrica
  • Ar condicionado

    Frio/quente
Descubra cada canto da propriedade
+2
Opções adicionais

Contactar o anunciante

Ou