map icon

Loja - Actividade Comercial para Venda

Zagreb
€ 156.487
2
89 m²

Nota

Anúncio atualizado em 12/02/2026
Descrição

referência: 1367-1

Agencija Sky nekretnine predstavlja dva ulična lokala u Novom Jelkovcu.

U prizemlju stambeno-poslovne zgrade izgrađene 2006. godine, na odličnoj lokaciji, nalaze se dva ulična poslovna prostora pogodna za različite djelatnosti.

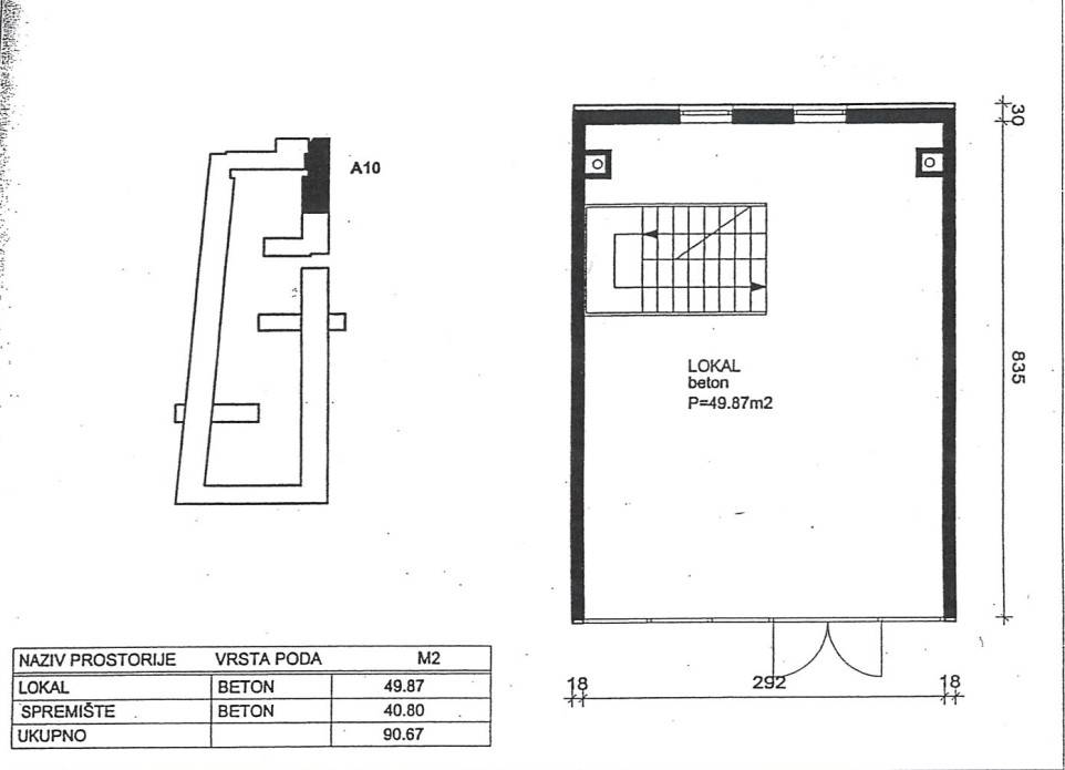
Prostor L9 sastoji se od lokala i spremišta ukupne površine 89,25 m.
Cijena: 156.487

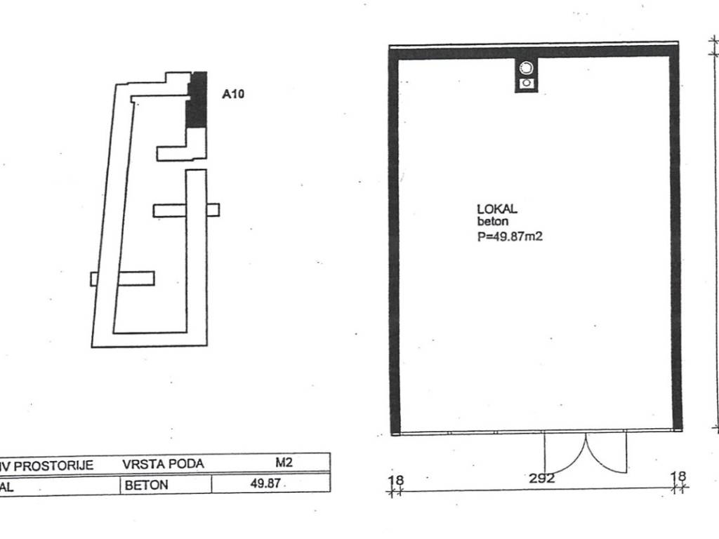
Prostor L10 sastoji se od lokala površine 49,85 m.
Cijena: 117.147

Prostori su u roh-bau fazi, što budućem vlasniku omogućuje uređenje i prilagodbu prostora u potpunosti prema vlastitim potrebama i namjeni.

Energetski certifikat je u izradi.

Svim svojim kupcima osiguravamo BESPLATNO kreditno posredovanje.

Kupac za navedenu nekretninu plaća minimalnu agencijsku proviziju u iznosu 1,5% od kupoprodajne cijene + PDV.

AGENT ZA NEKRETNINE Tijana 095 769 7767


Za dodatne informacije i razgledavanje slobodno nas kontaktirajte.
PONPET: 09:0017:00, SUB: 09:0012:00.
Características
Contrato
Venda
Superfície
89 m²
Quartos
2 quartos
Informações de preço
Preço
€ 156.487
Preço por m²
1.758 €/m²
Eficiência energética
  • Certificação energética

    Não classificável
Descubra cada canto da propriedade
+5
Opções adicionais

Contactar o anunciante

Ou