Terreno para construção para Venda

€ 183.600
2.363 m²

Nota

Anúncio atualizado em 02/04/2026
Descrição

referência: 7349

SKRAD, HLEVCI, u ponudu smo dobili odličan građevinski teren ukupne površine 2363m2.

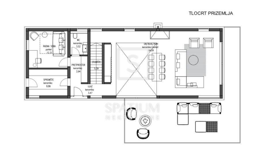
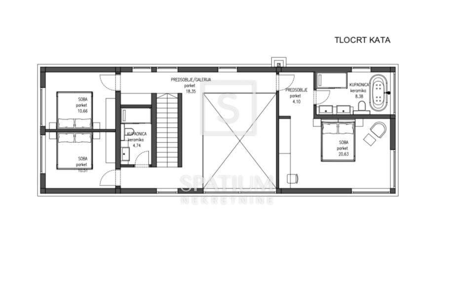
Teren se nalazi na odličnoj lokaciji, okruženo šumom, koje pruža potpunu intimu budućeg objekta. Preko zemljišta prelazi prirodni potok koji nikada ne presušuje te je dodatna vrijednost. U cijenu zemljišta dobivate i idejno rješenje prekrasne obiteljske kuće za odmor (suteren 140m2, prizemlje 125m2 + terasa 50m2 te kat od 125m2). Svi potrebni komunalni priključci nalaze se neposredno uz zemljište. Asfaltirani put je odmah uz parcelu i nalazi se na smo 5 minuta vožnje od izlaza Ravna Gora s autoceste.. Posljednjih nekoliko godina mjesto Hlevci dobili su epitet najpoželjnijeg mjesta u Gorskom kotaru.

Skrad (700 m) je poznato planinsko, klimatsko, turističko mjesto u srcu Gorskog kotara. Skrad ima izuzetno pogodan prirodni položaj. Visoko se uzdignuo nad kanjonom u kojem su Zeleni vir i Vražji prolaz, prirodne rijetkosti iznimnih odlika i ljepote. Zato se iz Skrada otvaraju vidici na dolinu Kupe, okolne planinske vrhove i slovenske planine. I druge prirodne pogodnosti (blaga subalpska klima) i dobre prometne veze izvrsna su prednost za razmah turizma i ljeti i zimi. Svatko će tu naći prigodu za odmor i rekreaciju.

Hlevci su malo naselje u Primorsko-goranskoj županiji koje se nalazi na 840 metara nadmorske visine. Ovo malo mjesto broji oko ukupno 17-ak stanovnika a nalazi se pet minuta vožnje od autorceste Rijeka-Zagreb. Hlevci imaju slikovit krajolik u kojem se skrivaju kuće za odmor kao iz bajke.

Za sve ostale informacije obratite se s povjerenjem.

Sanjin Latinčić
Agent s licencom
+385 91 28 99 599
sanjin@spatium.hr

Spatium nekretnine
+385 51 272 903
info@spatium.hr

ID CODE: 7349

Sanjin Latinčić
Agent s licencom
Mob: +385 91 289 9599
Tel: +385 51 272 903
E-mail: sanjin@spatium.hr
www.spatium.hr
Características
Contrato
Venda
Tipologia
Terreno para construção
Superfície
2.363 m²
Informações de preço
Preço
€ 183.600
Preço por m²
78 €/m²
Descubra cada canto da propriedade
+10
Opções adicionais

Contactar o anunciante

Ou