Apartamento T3 Tribunj, Tribunj

€ 327.390
3
106 m²
1
2
Não
Terraço

Nota

Anúncio atualizado em 03/05/2026
Descrição

This description has been translated automatically and may not be accurate

referência: 1250

In Tribunj, the district of Sovlja, three apartments in a smaller residential building with a total of four residential units are for sale. A valid building permit has been issued for the construction of the building and it is currently in a high-roh-bau phase of construction. The building itself is built respecting modern construction standards, has an extremely interesting design and functional layout. The two apartments on the ground floor that have already been sold are classic one-story apartments with attached gardens, while the other two apartments are two-story apartments with attached roof terraces that offer a wonderful view of the sea and the surrounding area. Among the equipment and materials we highlight: styrofoam facade, burglar-proof doors, anthracite-colored PVC joinery, electric roller blinds with mosquito nets, air conditioners in all rooms, high-quality ceramics in all rooms, modern bathroom sanitary ware, electric underfloor heating in the living room and bathroom. Each apartment has one parking space, and there is also the possibility of purchasing an additional parking space. The planned date of completion of the works and occupancy is expected by the end of 2026. Payment dynamics in agreement with the investor. On offer is:

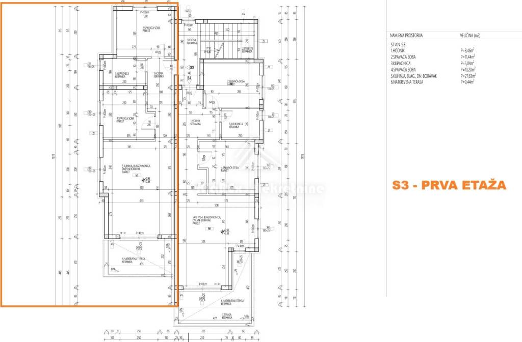
Residential unit S3 - two-story, two-room apartment on the first and second floor of a southwest-facing building. The apartment has a net area of ​​106.13m2, and consists of: first floor, on which there are: hallway, bathroom, two bedrooms, kitchen with dining room and living room with access to a terrace of 9.44 m2. The internal stairs lead to the second floor of the apartment, where there is a large walk-through terrace with a covered area of ​​11.14 m2 and an uncovered area of ​​46.04 m2, as well as a summer kitchen with an area of ​​18.56 m/2. The terrace offers a view of the sea and the surrounding area. The apartment has one parking space.

ID CODE: 1250

Julijo Klarin
Mob: +385 91 621 7217
Tel: +385 91 621 7217
E-mail: direktor@klarex-nekretnine.hr
www.klarex-nekretnine.hr
Características
Tipologia
Apartamento
Contrato
Venda
Andar
2 andar
Andares do Edifício
2
Elevador
Não
Superfície
106 m²
Quartos
3
Quartos
2
Casas de banho
1
Varanda
Não
Terraço
Sim
Estacionamento, lugares de estacionamento
1 em estacionamento compartilhado
Aquecimento
Individualizado, de ar
Ar condicionado
Ar condicionado, frio/quente
Informações de preço
Preço
€ 327.390
Preço por m²
3.089 €/m²
Eficiência energética
  • Aquecimento

    Individualizado, de ar
  • Ar condicionado

    Ar condicionado, frio/quente
  • Certificação energética

    Não classificável
Planta
Descubra cada canto da propriedade
+15
Opções adicionais

Contactar o anunciante

Ou