Apartamento T3 Štinjan, Pula, Štinjan, Pula

€ 232.875
3
64 m²
2
2
Não
Terraço

Nota

Anúncio atualizado em 28/04/2026
Descrição

This description has been translated automatically and may not be accurate

referência: 10643

The project location is in the suburban settlement of Štinjan, in the immediate vicinity of the primary school, kindergarten, the city beach Hidrobaza, a pharmacy and only four kilometers from the center of Pula and three kilometers from the center of Fažana. Access to the residential complex is provided from an asphalt surface, within which all the necessary infrastructure will be located (electricity, water, sewage).

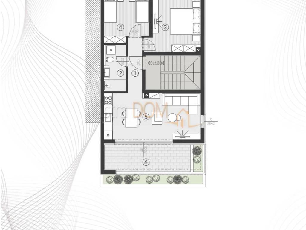
The apartment is located on the second floor of a building with a total of 4 residential units.
The apartment consists of a hallway, two bedrooms, a living room connected to the dining room and kitchen, a bathroom and a terrace with a pergola.
The apartment also has one parking space and a storage room.

What makes this project special is the architectural design of the facade of the residential buildings, and the green roofs that appear on the facade.
Each residential unit is provided with the required number of parking spaces according to the urban plan of the city of Pula, dimensions 2.50m' x 5.00m'. Parking spaces cannot be changed or omitted from the composition of the residential unit.
Each parking space has a future connection to the electricity grid with the aim of connecting chargers for electric vehicles.
In addition to the parking space, individual residential units also have storage rooms located on the ground floors of the buildings, which cannot be changed or omitted from the composition of the residential unit.

Construction begins in mid-2025
The buyer does not pay taxes

Contact: +385/99-444-5435
email: istradom.sasan@gmail.com

ID CODE: 10643

Saša Nanovski
Agent s licencom
Mob: 099 444 5435
Tel: 0994445435
E-mail: istradom.sasan@gmail.com
www.istra-dom.com
Características
Tipologia
Apartamento
Contrato
Venda
Andar
2 andar
Andares do Edifício
2
Elevador
Não
Superfície
64 m²
Quartos
3
Quartos
2
Casas de banho
2
Varanda
Não
Terraço
Sim
Estacionamento, lugares de estacionamento
1 em estacionamento compartilhado
Ar condicionado
Ar condicionado, frio/quente
Outras características
  • Porta blindada
Informações de preço
Preço
€ 232.875
Preço por m²
3.639 €/m²
Eficiência energética
  • Ano de construção

    2026
  • Ar condicionado

    Ar condicionado, frio/quente
  • Certificação energética

    Não classificável
Descubra cada canto da propriedade
+14
Opções adicionais

Contactar o anunciante

Ou