Apartamento T3 Poreč, Červar-Porat - Veli Maj, Poreč

€ 369.000
3
95 m²
1
r/c
Não
Terraço

Nota

Anúncio atualizado em 28/04/2026
Descrição

This description has been translated automatically and may not be accurate

referência: 2144

PLEASANT FAMILY APARTMENT WITH GARDEN WITHIN WALKING DISTANCE TO A MAINTAINED BEACH – POREČ

Situated in a მშვიდ quiet and pleasant location, just a few minutes’ easy walk from a maintained beach, this apartment immediately conveys a feeling of home. The combination of a private garden, covered terrace and quality construction makes this property a perfect choice for family living, seaside holidays or a secure future investment.

BASIC PROPERTY INFORMATION

• Apartment size: 95.13 m²
• Floor: ground floor
• Building type: new construction
• Energy class: A
• Planned move-in date: 31/05/2026
• Number of residential units in the building: 5
• Location: quiet urban neighbourhood, cul-de-sac with very little traffic

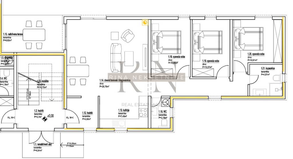
LAYOUT

The apartment is carefully designed for maximum comfort and functionality and consists of:
• spacious living room
• kitchen
• dining area
• covered terrace
• hallway
• three bedrooms
• bathroom
• separate WC

The living room opens onto a landscaped covered terrace that naturally continues into a private garden, creating an ideal space for morning coffee, family gatherings or relaxing in greenery.

EQUIPMENT AND TECHNICAL FEATURES

• 4 Mitsubishi air-conditioning units (living room and all bedrooms)
• Underfloor heating throughout the apartment – heat pump
• Domestic hot water via heat pump (175 L tank)
• Triple-glazed PVC windows with integrated mosquito nets
• Electric shutters
• Security entrance door
• Chimney in the living room allowing fireplace installation
• Private parking space in front of the building – option to purchase an additional space
• Quality block-brick construction
• Thermal facade insulation 10 cm

OUTDOOR AREA

• Private garden 115 m² – perfect for children, pets, gardening or summer evenings outdoors

LOCATION AND DISTANCES

• Public transport station
• Maintained beach – 800 m
• City centre – 2 km

ADDITIONAL INFORMATION

• Property is in the VAT system
• Buyer does not pay 3% real estate transfer tax

For additional information or to arrange a viewing, please contact:
+385 91 2848 310, Višnja

ID CODE: 2144

Višnja Broqi
Agent s licencom
Mob: +385 91 284 8310
Tel: +385 1 638 2643
E-mail: info@rina-nekretnine.hr
www.rina-nekretnine.hr
Características
Tipologia
Apartamento
Contrato
Venda
Andar
Rés-do-chão
Andares do Edifício
2
Elevador
Não
Superfície
95 m²
Quartos
3
Quartos
3
Casas de banho
1
Varanda
Não
Terraço
Sim
Estacionamento, lugares de estacionamento
1 em estacionamento compartilhado
Ar condicionado
Ar condicionado, frio/quente
Outras características
  • Porta blindada
Informações de preço
Preço
€ 369.000
Preço por m²
3.884 €/m²
Eficiência energética
  • Ano de construção

    2026
  • Ar condicionado

    Ar condicionado, frio/quente
  • Certificação energética

    Não classificável
Planta
Opções adicionais

Contactar o anunciante

Ou