Apartamento T3 Umag, Centar, Luka, Finida, Umag

€ 245.000
3
72 m²
2
1
Não
Varanda
Terraço

Nota

Anúncio atualizado em 22/04/2026
Descrição

This description has been translated automatically and may not be accurate

referência: ID02304

Umag - Modern apartment with a roof terrace with an incredible sea view! New construction!

A modern apartment in a new building is for sale, located in a luxurious urban villa with four residential units, in a quiet location but very close to the sea and the city center of Umag! This apartment offers privacy and peace, with an incredible view of the sea and nature, at a great price for such a new building near the sea in Istria!

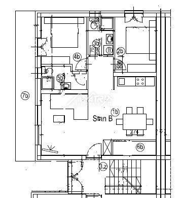
The apartment is located on the first floor of a building, with a total area of ​​73 m2, and consists of an open space that combines the kitchen, dining room and living room with access to an outdoor covered terrace through large glass walls that allow plenty of natural light throughout the day. The apartment also has two bedrooms and two bathrooms, one of which belongs to the master bedroom. The master bedroom also has its own access to the terrace.

In addition, the apartment has its own storage room located in the basement of the building with an area of ​​11 m2, and the special feature of the apartment is that it has a spacious roof terrace of 37 m2! The roof terrace offers a truly incredible view. The apartment also comes with one outdoor parking space.

The apartment is being sold unfurnished on a turnkey basis. Electric underfloor heating is provided for heating throughout the apartment, and inverter air conditioners are provided for cooling and heating in all rooms.

The apartment is currently under construction and is scheduled for completion by summer 2026.

This apartment offers an ideal opportunity to purchase a property for all those who aspire to a luxurious and peaceful lifestyle in a fantastic location. Whether you are looking for a peaceful retreat to get away from the hustle and bustle of everyday life or you want to invest, this property will certainly meet and exceed all your expectations.

ID CODE: ID02304

Daniel Matković
Agent s licencom
Mob: +385 95 506 58 05
Tel: +385 52 417 779
E-mail: daniel@matrixrealestate.hr
https://matrixrealestate.hr/

Matrix Real Estate
Voditelj ureda
Mob: +385 52 417 779
Tel: +385 52 417 779
E-mail: info@matrixrealestate.hr
https://matrixrealestate.hr/
Características
Tipologia
Apartamento
Contrato
Venda
Andar
1 andar
Andares do Edifício
1
Elevador
Não
Superfície
72 m²
Quartos
3
Quartos
2
Casas de banho
2
Varanda
Sim
Terraço
Sim
Estacionamento, lugares de estacionamento
1 em estacionamento compartilhado
Ar condicionado
Ar condicionado, frio/quente
Informações de preço
Preço
€ 245.000
Preço por m²
3.403 €/m²
Eficiência energética
  • Ano de construção

    2025
  • Ar condicionado

    Ar condicionado, frio/quente
  • Certificação energética

    Não classificável
Planta
Descubra cada canto da propriedade
+12
Opções adicionais

Contactar o anunciante

Ou