Vivenda familiar Sveti Lovreč, Sveti Lovreč

€ 400.000
4
186 m²
3
Não
Terraço

Nota

Anúncio atualizado em 23/02/2026
Descrição

This description has been translated automatically and may not be accurate

referência: 7426

SVETI LOVREČ - SURROUNDINGS, we offer a quality low-energy house, which extends over the ground floor and first floor, with a total net area of 186.70 m², on a plot of 1060 m².

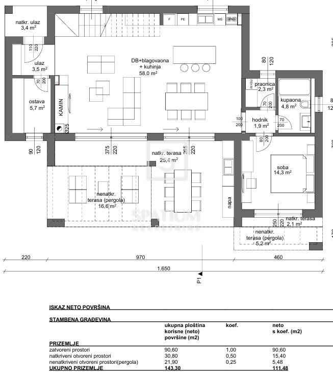
The ground floor, with a net area of 111.48 m², has a functional layout. It consists of an entrance hall, storage room, spacious living room with kitchen and dining room in an open concept, bedroom with its own terrace, bathroom, utility room and covered and uncovered terraces, ideal for spending time outdoors throughout the year.

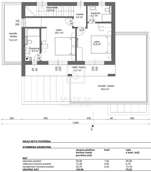
The first floor of the house, with a total net area of 75.23 m², is connected by a staircase and hallway and includes two spacious bedrooms, each with an attached bathroom and terrace. One of the terraces offers a view of the sea.

In front of the terrace, an outdoor pool of 36m2 is planned, which has a building permit and needs to be built.

Since the property is low-energy, heating and cooling are planned with air conditioners.

The house is being sold in a HIGH ROH-BAU phase of construction, with a completely finished exterior. The house will be fully equipped with electricity and water installations, so the future owner will be able to customize the house to their own wishes and tastes.

The location is quiet and practical, making this property ideal as an investment for living or for tourist purposes.

The ownership is pure 1/1, without encumbrances.

Sveti Lovreč is one of the best preserved medieval settlements in Istria, located just a few minutes drive from the sea and larger cities such as Poreč, Vrsar and Rovinj. This charming place exudes history, authentic architecture and a peaceful rhythm of life, and in the surrounding area there are numerous vineyards, olive groves and famous Istrian taverns. The combination of tradition, nature and proximity to all amenities makes Sveti Lovreč the perfect choice for those looking for a peaceful living environment or a luxurious holiday destination in the heart of Istria.

For further information, please contact us with confidence.

Michael Radola
Licensed agent
+385 91 575 3640
michael@spatium.hr

Spatium real estate
+385 51 272 503
info@spatium.hr

ID CODE: 7426

Michael Radola
Agent s licencom
Mob: +385 91 575 3640
Tel: +385 51 272 903
E-mail: michael@spatium.hr
www.spatium.hr
Características
Tipologia
Vivenda familiar
Contrato
Venda
Andares do Edifício
1
Elevador
Não
Superfície
186 m²
Quartos
4
Quartos
3
Casas de banho
3
Varanda
Não
Terraço
Sim
Estacionamento, lugares de estacionamento
3 em estacionamento compartilhado
Ar condicionado
Ar condicionado, frio/quente
Informações de preço
Preço
€ 400.000
Preço por m²
2.151 €/m²
Eficiência energética

Consumo de energia

A+

Planta
Descubra cada canto da propriedade
+7
Opções adicionais

Contactar o anunciante

Ou