1/25


Apartamento T3 novo, primeiro andar, Novalja
€ 249.000
Anúncio atualizado em 08/04/2026
Descrição
referência: PAG515
ID CODE: PAG515
Ivan Bronzović - LIKA
Asistent u posredovanju
Mob: 099/444-4979
Tel: 023/551-400
E-mail: ivan.bronzovic@dogma-nekretnine.com
www.dogma-nekretnine.com
Características
- Tipologia
- Apartamento
- Contrato
- Venda
- Andar
- 1 andar
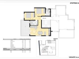
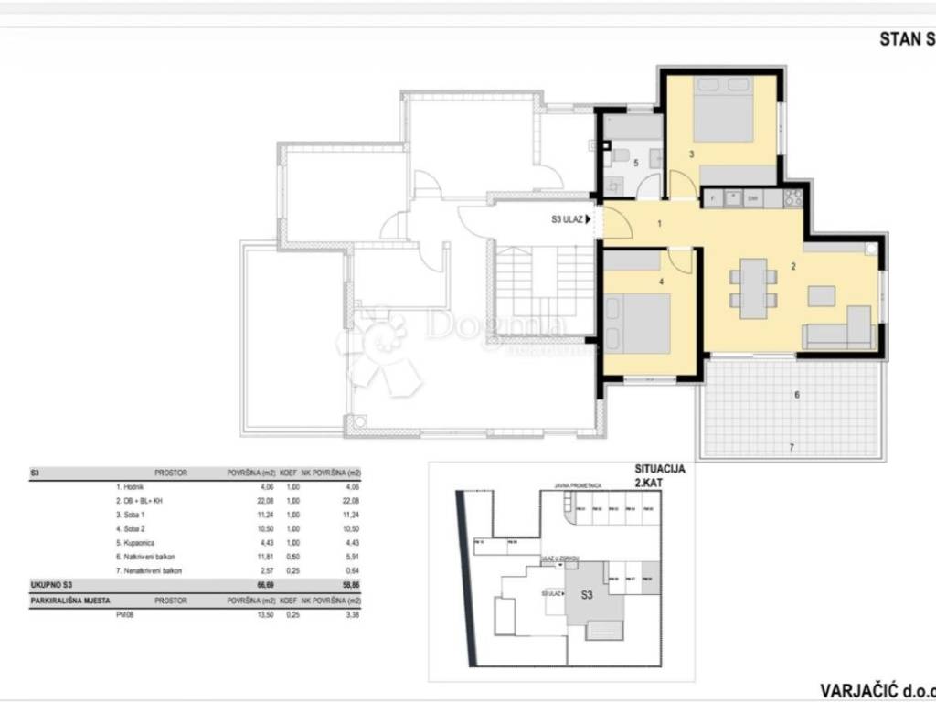
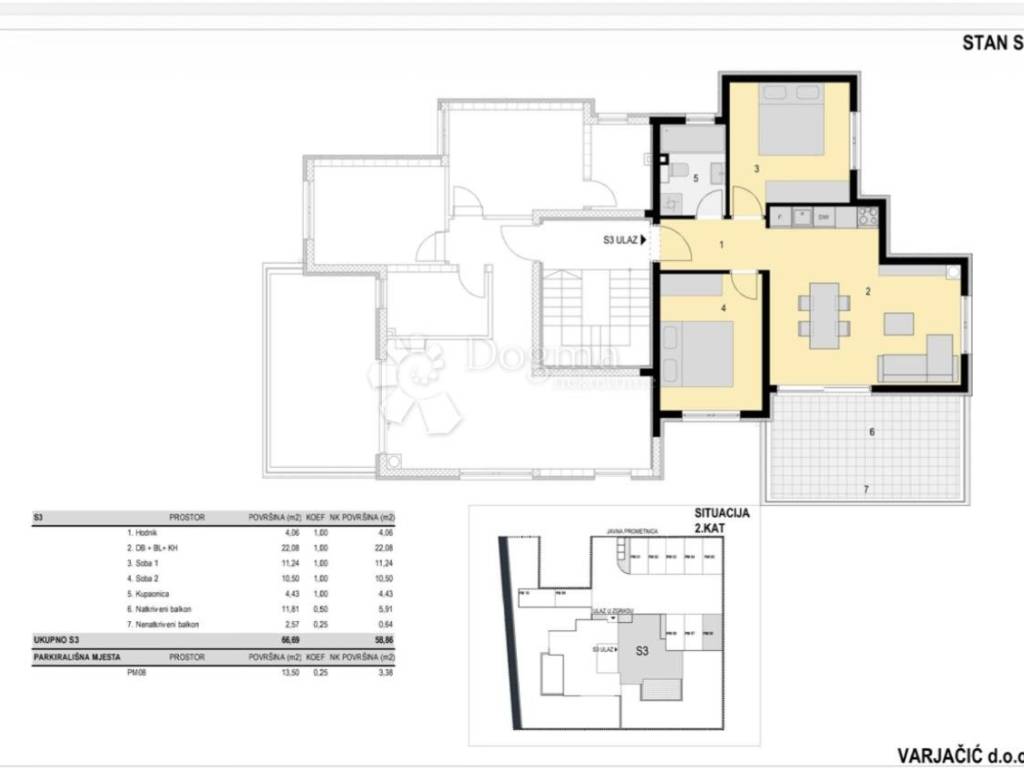
- Superfície
- 72 m²
- Quartos
- 3
- Quartos
- 2
- Casas de banho
- 2
- Varanda
- Não
- Terraço
- Não
Informações de preço
- Preço
- € 249.000
- Preço por m²
- 3.458 €/m²
Eficiência energética
Ano de construção
2026Estado
Novo / Em construçãoCertificação energética
Livre
Descubra cada canto da propriedade
Opções adicionais