Apartamento T3 Turanj, Sveti Filip I Jakov, Sveti Filip i Jakov

€ 259.710
3
75 m²
1
1
Sim

Nota

Anúncio atualizado em 20/03/2026
Descrição

This description has been translated automatically and may not be accurate

referência: 444

Apartment S3 for sale, located on the first floor of a modern new development in an attractive and peaceful area of Turanj, just 250 m from the sea and 700 m from the town center.

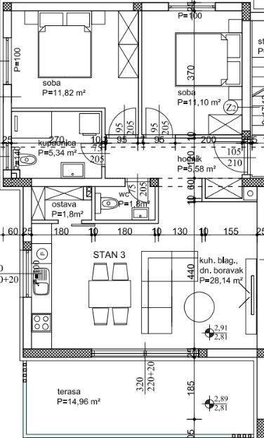
The apartment has a total area of 75.06 m² and consists of:

Hallway – 5.58 m²
Living room, kitchen and dining area – 28.14 m²
Bedroom 1 – 11.82 m²
Bedroom 2 – 11.10 m²
Bathroom – 5.34 m²
WC – 1.80 m²
Storage room – 1.80 m²
Terrace – 14.96 m²

The apartment includes one parking space.

The building consists of four floors with a total of nine luxury apartments and is equipped with an elevator, ensuring additional comfort.

Construction quality and features:

Reinforced concrete structure (foundations, slabs and staircase)
Load-bearing brick walls
ETICS façade system with 10 cm thermal insulation
PVC external joinery with insulated glass and aluminum shutters (RAL installation)
Fire-resistant entrance doors (EI2-30-C)
Flooring: ceramic tiles and parquet
Floors connected by reinforced concrete staircase and elevator
Building connected to the public sewage system

The planned move-in date is 06/2027.

An excellent opportunity for family living, holiday use, or as an investment for tourist rental.

For additional information or to arrange a viewing, please feel free to contact us.

ID CODE: 444

Andro Jakoliš
Mob: +385 99 347 3562
E-mail: andro@materra.estate
www.materra.estate
Características
Tipologia
Apartamento
Contrato
Venda
Andar
1 andar
Andares do Edifício
2
Elevador
Sim
Superfície
75 m²
Quartos
3
Quartos
2
Casas de banho
1
Varanda
Não
Terraço
Não
Estacionamento, lugares de estacionamento
1 em estacionamento compartilhado
Informações de preço
Preço
€ 259.710
Preço por m²
3.463 €/m²
Eficiência energética
  • Ano de construção

    2026
  • Certificação energética

    Não classificável
Descubra cada canto da propriedade
+10
Opções adicionais

Contactar o anunciante

Ou