Apartamento T2 Okrug Gornji, Okrug

€ 300.000
2
79 m²
2
Varanda
Terraço

Nota

Anúncio atualizado em 25/03/2026
Descrição

referência: EUROVILLA-289843

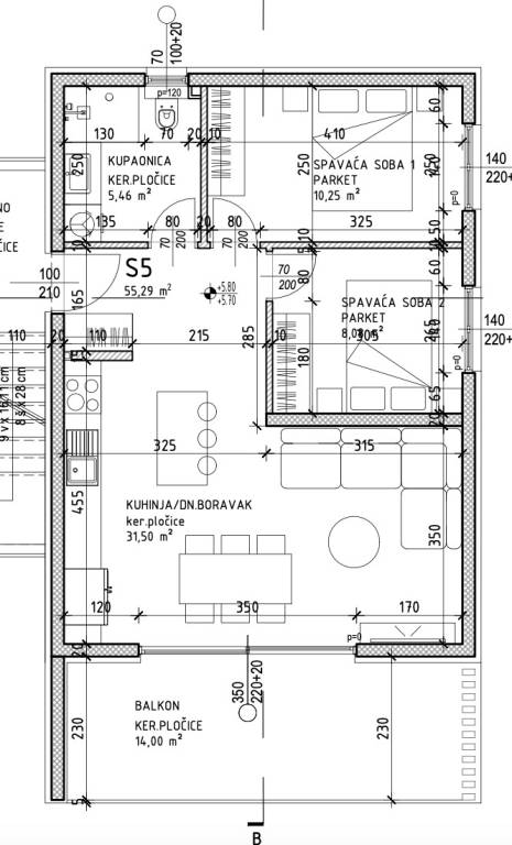
Trogir, Čiovo, ekskluzivna prodaja dvosobnog stana s pripadajućom krovnom terasom, položenog na drugoj etaži manjeg stambenog objekta s ukupno pet stambenih jedinica.Stan je podijeljen na hodnik, kupaonicu, dvije spavaće sobe i dnevni dio ( kuhinja/ blagovaonica/ dnevni boravak ) s direktnim izlazom na natkriveni balkon površine 14 m2.Zatvorena stambena površina iznosi 55, 29 m2.Stanu pripada privatna krovna terasa površine 69, 90 m2 s otvorenim pogledom na more, te jedno vanjsko parkirno mjesto.Gradnja objekta je krenula u listopadu, a useljenje je predviđeno u prvoj polovici 2027. godine.Izvrsna mikrolokacija, u blizini centra Trogira, te samo nekoliko koraka od uređene plaže.Za sve dodatne informacije, stojimo vam na raspolaganju.... Više na eurovilla.hr, ID: 289843
Se quiser saber mais, pode falar com Josipa Serdarušić.
Características
Tipologia
Apartamento
Contrato
Venda
Andar
2
Superfície
79 m²
Quartos
2
Quartos
2
Varanda
Sim
Terraço
Sim
Detalhe da superfície

Habitação

Andar
2
Superfície
79,5 m²
Coeficiente
100%
Tipo de superfície
Principal
Sup comercial
79,5 m²
Informações de preço
Preço
€ 300.000
Preço por m²
3.797 €/m²
Eficiência energética
  • Estado

    Novo / Em construção
  • Certificação energética

    Livre
Planta
Descubra cada canto da propriedade
+14
Opções adicionais

Contactar o anunciante

Ou
agent male

Josipa Serdarušić