Apartamento T4 Male vruje, Vodice

€ 533.664
4
148 m²
r/c
Varanda
Terraço

Nota

Anúncio atualizado em 03/03/2026
Descrição

referência: EUROVILLA-363430

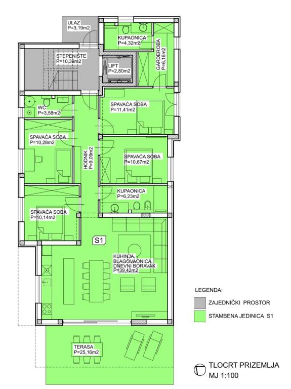
Na iznimnoj lokaciji u centru Vodica, svega 200 metara od mora, nalazi se ovaj prostrani apartman u prizemlju novogradnje visoke kvalitete, neto korisne površine 148,24 m². Nekretnini pripadaju dva privatna parkirna mjesta te prostrano dvorište površine 99,58 m², što predstavlja rijetkost u ovom dijelu mjesta. Ukupna zatvorena površina stana iznosi 111,30 m².Stan je funkcionalno i moderno osmišljen, a sastoji se od prostranog dnevnog boravka s kuhinjom i blagovaonicom, četiri spavaće sobe (od kojih jedna ima vlastitu kupaonicu i walk in garderobu), dodatne kupaonice te zasebnog toaleta. Iz dnevnog boravka izlazi se na veliku terasu površine 25,16 m², koja je povezana s ostatkom dvorišta i čini savršen prostor za boravak na otvorenom.Veliko privatno dvorište pruža brojne mogućnosti uređenja - od zone za roštilj i druženje, do prostora za dječje igralište ili dodatni vrt, čime se dodatno naglašava ekskluzivnost ove nekretnine.Zgrada je građena prema najvišim standardima gradnje i opreme. Izdvajamo:dizalopodno grijanje na toplinsku pumpuMitsubishi klima uređaje u svim prostorijamavrhunsku stolariju s troslojnim staklomvideo parlafonpripremu za punionicu električnih vozila na parkirnom mjestupametnu parking rampu s očitavanjem registarskih oznakaLokacija zgrade dodatno povećava vrijednost nekretnine - mirna, a istovremeno centralna pozicija, na nekoliko minuta hoda od mora, plaže i svih sadržaja, čini ovu novogradnju jednom od rijetkih i najpoželjnijih u ovom dijelu Vodica.Za sve dodatne informacije i razgledavanje, slobodno nas kontaktirajte.... Više na eurovilla.hr, ID: 363430
Se quiser saber mais, pode falar com Domagoj Matić.
Características
Tipologia
Apartamento
Contrato
Venda
Andar
Rés-do-chão
Superfície
148 m²
Quartos
4
Quartos
4
Varanda
Sim
Terraço
Sim
Detalhe da superfície

Habitação

Andar
Rés-do-chão
Superfície
148,2 m²
Coeficiente
100%
Tipo de superfície
Principal
Sup comercial
148,2 m²
Informações de preço
Preço
€ 533.664
Preço por m²
3.606 €/m²
Eficiência energética
  • Estado

    Novo / Em construção
  • Certificação energética

    Livre
Planta
Descubra cada canto da propriedade
+20
Opções adicionais

Contactar o anunciante

Ou