Apartamento T2 Žrnovnica, Mejaši - Sirobuja, Split

€ 208.544
2
54 m²
1
Varanda

Nota

Anúncio atualizado em 03/03/2026
Descrição

referência: EUROVILLA-590137

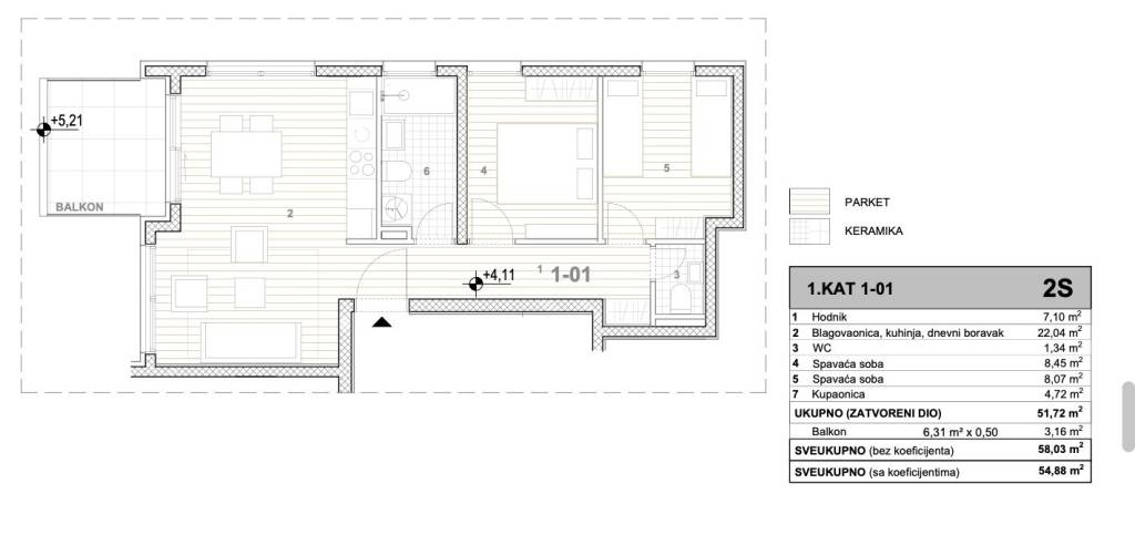
Split - Žrnovnica, moderan dvosoban stan smješten na prvom katu manje stambene zgrade u mirnoj ulici.Stan je jugozapadne orijentacije, a raspored prostorija uključuje dvije spavaće sobe, hodnik, kupaonicu, dodatni WC i balkon koji pruža obilje prirodnog svjetla. Površina zatvorenog stambenog dijela iznosi 51,72 m2, dok je površina balkona 6,31 m2.Riječ je o manjoj, moderno projektiranoj stambenoj zgradi u kojoj su svi ostali stanovi već prodani, što dodatno potvrđuje kvalitetu lokacije i projekta.Pristupni put osiguran je sa sjeverne strane i spaja se na privatni parking s južne strane objekta. Jedno vanjsko parkirno mjesto uključeno je u cijenu, a postoji i opcija kupnje dodatnog parking mjesta.Instalacije za klima uređaje će se nalaziti u sobama i dnevnom boravku. Postavljeni će biti komarnici i električne rolete.Završetak gradnje očekuje se krajem 2026. godine. Posebna prednost je mirno okruženje bez prometa i buke - zgrada se nalazi na sporednoj cesti, bez neposrednog izlaza na glavne prometnice, što omogućuje djeci sigurno i bezbrižno igranje oko same zgrade.U neposrednoj blizini nalazi se rijeka Žrnovnica, uz koju se proteže popularna šetnica koja vodi sve do mora i prekrasnog Strožanca s mnoštvo zabavnog i korisnog sadržaja. Lokacija je izuzetno pogodna za obitelji - u blizini su svi ključni sadržaji poput trgovine, vrtića, osnovne škole, pekarnice, konjičkog kluba i brojnih drugih.Za dodatne informacije slobodno nam se obratite.... Više na eurovilla.hr, ID: 590137
Se quiser saber mais, pode falar com Lucija Medak.
Características
Tipologia
Apartamento
Contrato
Venda
Andar
1
Superfície
54 m²
Quartos
2
Quartos
2
Varanda
Sim
Detalhe da superfície

Habitação

Andar
1
Superfície
54,9 m²
Coeficiente
100%
Tipo de superfície
Principal
Sup comercial
54,9 m²
Informações de preço
Preço
€ 208.544
Preço por m²
3.862 €/m²
Eficiência energética
  • Estado

    Novo / Em construção
  • Certificação energética

    Livre
Planta
Descubra cada canto da propriedade
+3
Opções adicionais

Contactar o anunciante

Ou