Apartamento T3 Okrug Gornji, Okrug

€ 580.000
3
126 m²
3
Varanda
Terraço

Nota

Anúncio atualizado em 03/03/2026
Descrição

referência: EUROVILLA-615446

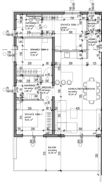
Čiovo, Okrug Gornji, trosoban penthouse položen na trećoj etaži modernog objekta s liftom i bazenom, u izgradnji.Stan S7 se sastoji od ulaznog hodnika, ostave, tri spavaće sobe, dvije kupaonice, kuhinje s blagovaonicom i dnevnog boravka s izlazom na natkriveni balkon površine 24 m2. Pripada mu prostrana krovna terasa površine 109, 6 m2 s predivnim i otorenim pogledom na more i otoke. Površina zatvorenog stambenog dijela iznosi 81, 30 m2, a ukupna 126, 55 m2.U cijenu su uračunata i dva vanjska nenatkrivena parkirna mjesta.Objekt je smještan na južnoj strani Čiova, na odličnoj lokaciji, jako blizu uređenih plaža, restorana, trgovina,….Za sva ostala pitanja, stojim na raspolaganju.... Više na eurovilla.hr, ID: 615446
Se quiser saber mais, pode falar com Josipa Serdarušić.
Características
Tipologia
Apartamento
Contrato
Venda
Andar
3
Superfície
126 m²
Quartos
3
Quartos
3
Varanda
Sim
Terraço
Sim
Detalhe da superfície

Habitação

Andar
3
Superfície
126,6 m²
Coeficiente
100%
Tipo de superfície
Principal
Sup comercial
126,6 m²
Informações de preço
Preço
€ 580.000
Preço por m²
4.603 €/m²
Eficiência energética
  • Estado

    Novo / Em construção
  • Certificação energética

    Livre
Planta
Descubra cada canto da propriedade
+20
Opções adicionais

Contactar o anunciante

Ou
agent male

Josipa Serdarušić